Nov stan, 2.0, u blizini Zire ID#14403

pregledajte 4 slika
Bild 2256544
Bild 2256545
Vrsta stan – prodaja
Lokacija Beograd – Zvezdara – Slavujev venac
Adresa Dimitrija Tucovića
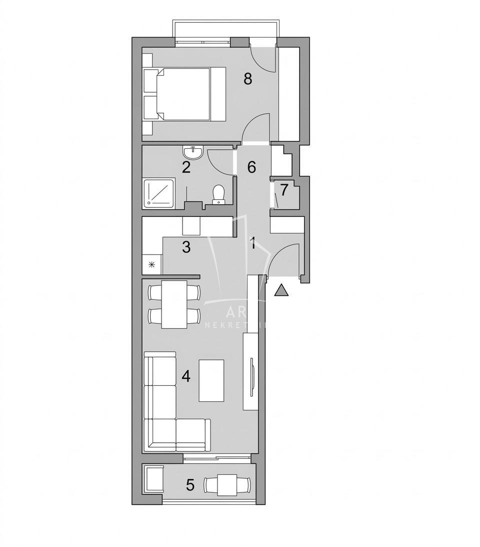
stan površina 51m²
Sobe 2,0 (Dvosoban)
Kupatila 1 kupatila
Terase Terasa
Sprat 4 od 4 spratova,
Grejanje etažno
Dodatno
Cena 238.000€ [ 4666 €/m² ]
Nov dvosoban stan u objektu visoke klase u blizini Zire. Sastoji se od dnevnog boravka sa trpezarijom, kuhinje, kupatila, spavaće sobe, vešernice i terase. Sve u stanu je visokog kvaliteta, aluminijumska stolarija, roletne sa elektromotorima, prvoklasna keramika, grejanje na toplotne pumpe. Mogućnost kupovine garažnog mesta po ceni od 18000+PDV. Planirani rok završetka radova juli 2026. Uredna dokumentacija. Povrat PDV-a za kupce prvog stana. Agencijska provizija 2% Agent: Darko Slivar br. licence 4162 Art nekretnine d.o.o. Beograd. Reg. br.339 011/26-20-734 .
ID nekretnine 225556
Izmena 22.03.2026
Ažuriran 07.04.2026
Link https://www.e-Belgrade.net/nekretnina/zvezdara-stan-prodaja-238000eur-51m2-dvosoban-225556
Kontakt
Art nekretnine
Art nekretnine
Beograd
Adresa: Dositejeva 9
Broj u registru: 339
Pošalji upit