Zvezdara, Vojvode Vlahovića - Nikole Altomanovića, 42m2

pregledajte 1 slika
Bild 1982394
Vrsta stan , prizemlje – prodaja
Lokacija Beograd – Zvezdara – - – Vojvode Vlahovića
Adresa Nikole Altomanovića
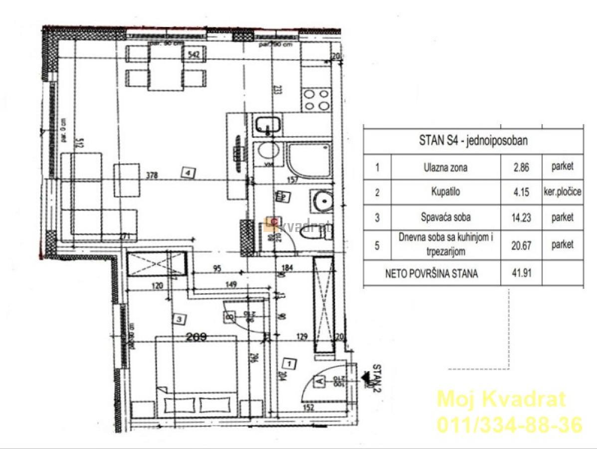
stan površina 42m²
Sobe 1,5 (Jednoiposoban)
Terase
Sprat prizemlje od 2 spratova
Grejanje podno
Stanje novogradnja
Garaža / Parking 1 X Garaža1 X Parking
Godina gradnje 2025
Dodatno
Cena 92.400€ [ 2200 €/m² ]
Zvezdara, Vojvode Vlahovića - Nikole Altomanovića 1.5, 42m2, PR/2, podno grejanje/struja, inverter klima, interfon, parking, garaža U mirnoj ulici, u naselju Vojvode Vlahović gradi se zgrada koja ima prizemlje i dva sprata i garažu. Prostorije: dnevni boravak sa kuhinjom i trpezarijom, hodnik, spavaća soba i kupatilo. Stanovi su vrlo funkcionalni, grade se sa vrlo kvalitetnim materijalima - izolacija stiropor 10, španska keramika, PVC stolarija sa troslojnim staklom. Grejanje je podno (na struju) i svaki stan ima svoj kotao, kao i inverter klimu. Zgrada ima svu potrebnu dokumentaciju i kada bude izgrađeno 60% moguća je kupovina na kredit. U cenu stana je uračunat PDV. Građevinska dozvola. Agencijska provizija 2% Agent: Mirela Perović 060/72-77-557 (licenca br.2566) Interfon, Nije poslednji sprat Gradska kanalizacija
ID nekretnine 202508
Izmena 12.02.2026
Ažuriran 22.05.2026
Link https://www.e-Belgrade.net/nekretnina/zvezdara-stan-92400eur-42m2-jednoiposoban-202508
Kontakt
MOJ KVADRAT D.O.O.
MOJ KVADRAT D.O.O.
Beograd
Adresa: Beogradska 71/II
Broj u registru: 167
Pošalji upit