Mirijevo– moderan stan,novogradnja lux ID#1627

pregledajte 1 slika
Bild 2271310
Vrsta stan , Visoko prizemlje – prodaja
Lokacija Beograd – Zvezdara – Mirijevo I II III IV
Adresa
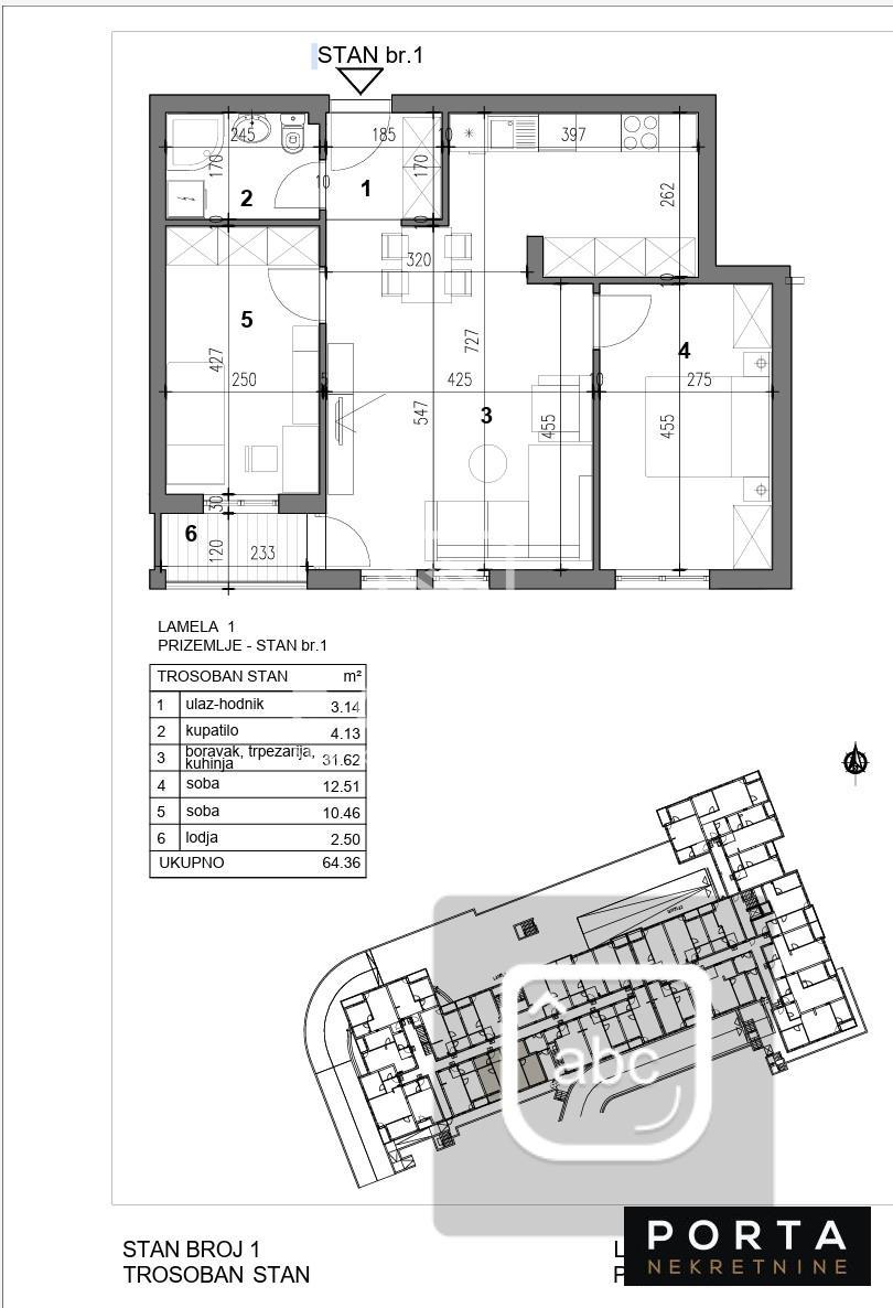
stan površina 64,36m²
Sobe 3,0 (Trosoban)
Kupatila 1 kupatila
Terase
Sprat Visoko prizemlje od 4 spratova
Grejanje etažno
Dodatno
Cena 160.000€ [ 2486 €/m² ]
NOVOGRADNJA MIRIJEVO – MODERAN STAN U PRIRODNOM OKRUŽENJU Cena stana je 160000 eur Predstavljamo vam jedinstvenu priliku za savremeno i komforno stanovanje u jednom od najlepših delova Mirijeva – na uzvišenju sa panoramskim pogledom na Dunav i Avalu! Stan se sastoji iz hodnika,dnevno trpezarijskog boravka sa kuhinjom, dve spavaće sobe, kupatila i lođe sa prelepim pogledom. Lokacija: Mirna i zelena zona, idealna za porodičan život – udaljena od buke i saobraćaja, a na samo par minuta od: gradskog prevoza,škola ,vrtića, marketa, banke, pijace i Doma zdravlja O zgradi: Novogradnja – rok završetka mart 2026. Dve lamele, po četiri sprata + povučeni sprat Dva lifta, podzemna garažai Rampa za invalide Kvalitet gradnje: Hrastov višeslojni parket, termo blokovi poboljšanih karakteristika, PVC stolarija sa dvoslojnim staklom i aluminijumske roletne Stanovi su opremljeni: Norveškim radijatorima,Walk-in tuševima,sušačima veša i kvalitetnim pločicama renomiranih brendova Dodatne pogodnosti: Garažna mesta sa ventilacijom i protivpožarnim sistemom koje možete kupiti po ceni od 12000 eur sa uračunatim PDV(20%). Mogućnost ugradnje elektro-punjača (uz doplatu) Cena: Za više informacija, prezentaciju stana i rezervacije, kontaktirajte nas već danas. . Agencijska provizija 2%
ID nekretnine 226931
Izmena 27.03.2026
Ažuriran 07.04.2026
Link https://www.e-Belgrade.net/nekretnina/zvezdara-stan-160000eur-64.36m2-trosoban-226931
Kontakt
AGENCIJA ZA NEKRETNINE PORTA NEKRETNINE
AGENCIJA ZA NEKRETNINE PORTA NEKRETNINE
Beograd
Adresa: Tadeuša Košćuška 94
Broj u registru: 935
Pošalji upit