Stanovi u izgradnji na idelanoj lokaciji - luksuzan život u mirnom kraju, a u gradu
pregledajte 10 slika
| Vrsta | stan , prizemlje – prodaja |
| Lokacija | Beograd – Zvezdara – Mirijevo I II III IV – Mirijevo |
| Adresa | |
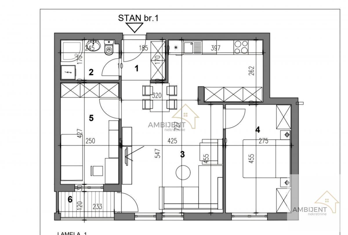
| stan površina | 64,36m² |
| Sobe | 3,0 (Trosoban) |
| Terase | Lodja |
| Sprat | prizemlje od 4 spratova · sa Liftom |
| Grejanje | norveški radijatori |
| Stanje | novogradnja Lux |
| Garaža / Parking | 1 X Garaža1 X Parking |
| Dodatno | |
| Cena | 160.000€ [ 2486 €/m² ] |
| ID 921 Direktna cena od investitora bez provizije. Izrada i nadzor overe kupoprodajnog ugovora su obezbeđeni. - Stan se nalazi u Mirijevu, lokacija zgrade je dovoljno udaljena i zelenilom zaštićena od saobraćajnica, pruža jedinstvenu mogućnost za moderno i komforno stanovanje u ambijentu mira i tišine, a opet dovoljno blizu velikog naselja koje ima sve sadržaje za šetnju, sport, rekreaciju, igru i zdravo odrastanje dece. - Struktura stana: ulazni hodnik, prostrani dnevni boravak i kuhinja koja se trpezarijom spaja sa dnevnom sobom, dve spavaće sobe, kupatilo i lođa koja je sjajan kutak za odmor ili rad. -Prostorije su pravilnog oblika, funkcionalne i prozračne. - Postoji mogućnost kupovine parking mesta, cena je 12.000e sa pdv-om. - Mogućnost korigovanja cene u odnosu na način otplate. Rok završetka radova novembar 2026. Cena je sa PDV-om, a pravo na povraćaj imaju kupci prvog stana. Broj u registru posrednika 1667. Kontakt za više informacija ili dogovor oko razgledanja: 064/3255742 Video nadzor, Video interfon, Interfon, Nije poslednji sprat Može na kredit Gradska kanalizacija Topla voda | |
| ID nekretnine | 200362 |
| Izmena | 25.02.2026 |
| Ažuriran | 07.04.2026 |
| Link | https://www.e-Belgrade.net/nekretnina/zvezdara-stan-160000eur-64.36m2-trosoban-200362 |
Kontakt
Ambijent Nekretnine
Inđija
Adresa: Kralja Petra I 9
Broj u registru: 1667