Stan u izgradnji, komforno stanovanje u ambijentu mira i tišine
pregledajte 1 slika
| Vrsta | stan – prodaja |
| Lokacija | Beograd – Zvezdara – Mirijevo I II III IV – Mirijevo |
| Adresa | |
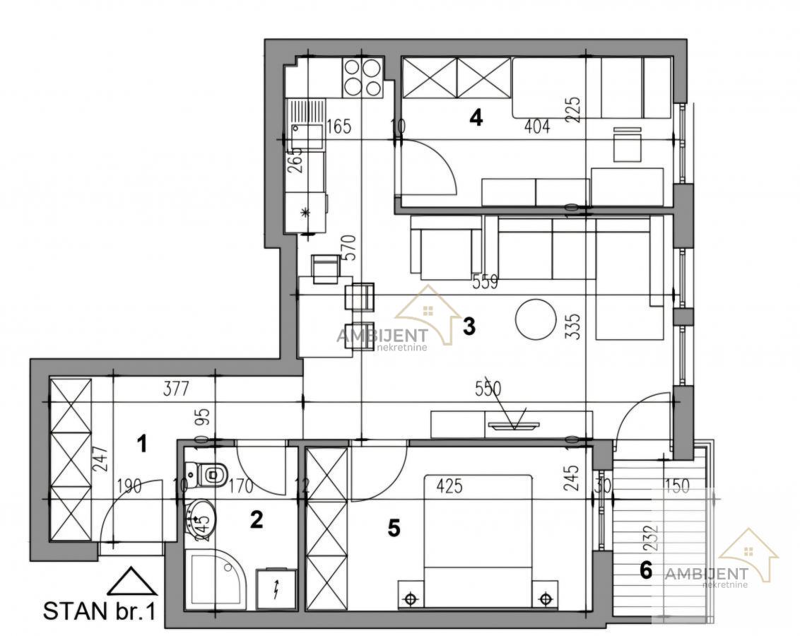
| stan površina | 56,25m² |
| Sobe | 2,5 (Dvoiposoban) |
| Terase | Terasa + Lodja |
| Sprat | 3 od 4 spratova, · sa Liftom |
| Grejanje | norveški radijatori |
| Stanje | novogradnja Lux |
| Garaža / Parking | 1 X Garaža1 X Parking |
| Dodatno | |
| Cena | 140.000€ [ 2488 €/m² ] |
| ID 940 Kontakt za više informacija ili dogovor oko razgledanja: 064/3255742 Direktna cena od investitora bez provizije. Izrada i nadzor overe kupoprodajnog ugovora su obezbeđeni. - Stan se nalazi u Mirijevu, lokacija zgrade je dovoljno udaljena i zelenilom zaštićena od saobraćajnica, pruža jedinstvenu mogućnost za moderno i komforno stanovanje u ambijentu mira i tišine a opet dovoljno blizu velikog naselja koje ima sve sadržaje za šetnju, sport, rekreaciju, igru i zdravo odrastanje dece. - Struktura stana: ulazni hodnik, prostrani dnevni boravak sa trpezarijom i kuhinjom, dve spavaće sobe, kupatilo i lođu koja je sjajan kutak za odmor ili rad. Stan ovakve strukture može se naći na drugom i povučenom spratu. - Prostorije su pravilnog oblika, funkcionalne i prozračne. - Dostupno još stanova različitih kvadratura, različite strukture i spratnosti. - Postoji mogućnost kupovine parking mesta, cena je 12000e sa pdv-om. - Mogućnost korigovanja cene u odnosu na način otplate. Rok završetka radova kraj 2027. Cena sa PDV-om, a pravo na povraćaj imaju kupci prvog stana. Broj u registru posrednika 1667. Video nadzor, Video interfon, Interfon, Nije poslednji sprat Može na kredit Gradska kanalizacija Topla voda | |
| ID nekretnine | 223515 |
| Izmena | 25.02.2026 |
| Ažuriran | 22.05.2026 |
| Link | https://www.e-Belgrade.net/nekretnina/zvezdara-stan-140000eur-56.25m2-dvoiposoban-223515 |
Kontakt
Ambijent Nekretnine
Inđija
Adresa: Kralja Petra I 9
Broj u registru: 1667