Zemun, Sutjeska - Pazovački put, 75m2

pregledajte 1 slika
Bild 1982342
Vrsta stan – prodaja
Lokacija Beograd – Zemun – Meandri – Sutjeska
Adresa Pazovački put
stan površina 75m²
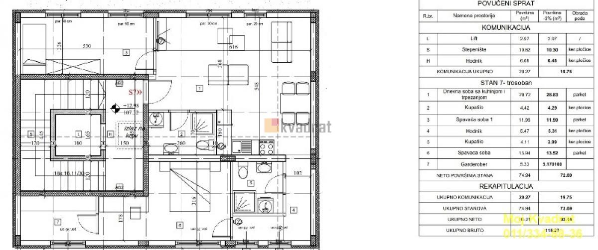
Sobe 3,0 (Trosoban)
Terase
Sprat 4 od 4 spratova, · sa Liftom
Grejanje podno
Stanje novogradnja
Garaža / Parking 1 X Garaža1 X Parking
Godina gradnje 2025
Dodatno
Cena 206.085€ [ 2747 €/m² ]
Zemun, Sutjeska - Pazovački put 3.0, 75m2, podno grejanje/struja, inverter klima, lift, 4/4, interfon, parking, garaža Na Pazovačkom putu gradi se zgrada sa tri sprata + povučeni sprat. Zgrada ima i garažu. Stan je funkcionalan i sastoji se od dnevnog boravka sa kuhinjom, tri spavaće sobe, hodnika i kupatila. Stanovi su vrlo funkcionalni, grade se sa vrlo kvalitetnim materijalima - izolacija stiropor 10, španska keramika, PVC stolarija sa troslojnim staklom. Grejanje je podno (na struju) i svaki stan ima svoj kotao, kao i inverter klimu. Predviđeno useljenje je maj 2026. godine, a predviđena izgrađenost kada će biti moguća kupovina preko stambenog kredita je oktobar 2025. godine. U cenu stana je uračunat PDV. Građevinska dozvola. Agencijska provizija 2% Agent: Mirela Perović 060/72-77-557 (licenca br.2566) Interfon, Klima, Nije prizemlje Gradska kanalizacija
ID nekretnine 202511
Izmena 16.07.2025
Ažuriran 23.05.2026
Link https://www.e-Belgrade.net/nekretnina/zemun-stan-prodaja-206085eur-75m2-trosoban-202511
Kontakt
MOJ KVADRAT D.O.O.
MOJ KVADRAT D.O.O.
Beograd
Adresa: Beogradska 71/II
Broj u registru: 167
Pošalji upit