Zemun, centar (Magistratski trg) - Gospodska, 170m2

pregledajte 20 slika
Bild 2078649
Bild 2078650
Vrsta kuca – prodaja
Lokacija Beograd – Zemun – Zemun centar – Zemun-centar
Adresa Gospodska
kuca površina 170m² , uknjižena nekretnina , uknjižena nekretnina
Grejanje etažno
Godina gradnje 1900
Podrum Podrum
Dodatno
Cena 600.000€ [ 3529 €/m² ]
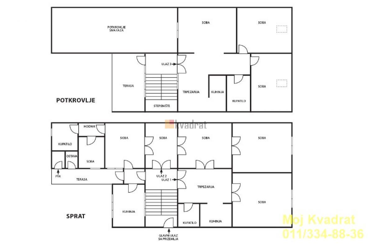
Zemun, centar (Magistratski trg) - Gospodska vertikala kuće, 7.0, 170m2, dve terase, PR+2, EG, interfon, podrum U ponudi za prodaju vertikala kuće salonskog tipa u srcu Zemuna. Smeštena je na Magistratskom trgu, glavnoj pešačkoj zoni između Glavne ulice i Zemunskog keja. Kuća je u izvornom stanju i sastoji se od prizemlja, prvog sprata i potkrovlja. U prizemlju kuće nalazi se lokal. Na prvom spratu nalazi se četvorosoban stan koji se sastoji od predsoblja, prostrane dnevne sobe, tri spavaće sobe, trpezarije, dve kuhinje, dva kupatila i terase. Kupatila su renovirana. Visina plafona iznosi skoro 3m, dok visina štokova vrata iznosi 2.60m. Potkrovlje se sastoji od dnevnog boravka, dve spavaće sobe, kuhinje, trpezarije, kupatila i terase. Tavanski prostor u produžetku potkrovlja oko 40m2. Poseduje i pripadajući podrum. Vertikala kuće je autonomna sa zasebnim ulazom sa stepeništem. Dvostrano je orijentisana, jednim delom gleda ka Gardošu, a drugim delom ka Magistratskom trgu. Fasada je dekorativnog tipa. Jedna od prednosti ove nepokretnosti jeste arhitektonsko rešenje kojim je omogućeno da se naprave tri potpuno odvojene stambene jedinice. Pregradom jednog zida na prvom spratu dobio bi se jedan dvosoban i jedan trosoban stan. Tavanski prostor moguće je pripojiti potkrovlju. U neposrednoj blizini je pijaca i veliki broj radnji mešovite robe. Uknjižena bez upisane kvadrature, po poreskom rešenju ima 170m2. Agencijska provizija 2% Agent Svetlana Todorov 066/239-141 (licenca br.6305) Interfon, Salonski stan. Izvorno stanje. Stara gradnja. Gradska kanalizacija
ID nekretnine 209572
Izmena 05.09.2025
Ažuriran 25.05.2026
Link https://www.e-Belgrade.net/nekretnina/zemun-kuca-prodaja-600000eur-170m2-7-0-soba-209572
Kontakt
MOJ KVADRAT D.O.O.
MOJ KVADRAT D.O.O.
Beograd
Adresa: Beogradska 71/II
Broj u registru: 167
Pošalji upit