Zemun - Pregrevica, 765m2

pregledajte 20 slika
Bild 1954899
Bild 1954900
Vrsta kuca – prodaja
Lokacija Beograd – Zemun – - – Pregrevica
Adresa Pregrevica
kuca površina 765m² , uknjižena nekretnina , uknjižena nekretnina
Grejanje podno
Garaža / Parking 1 X Parking
Podrum Podrum
Dodatno
Cena 1.496.000€ [ 1955 €/m² ]
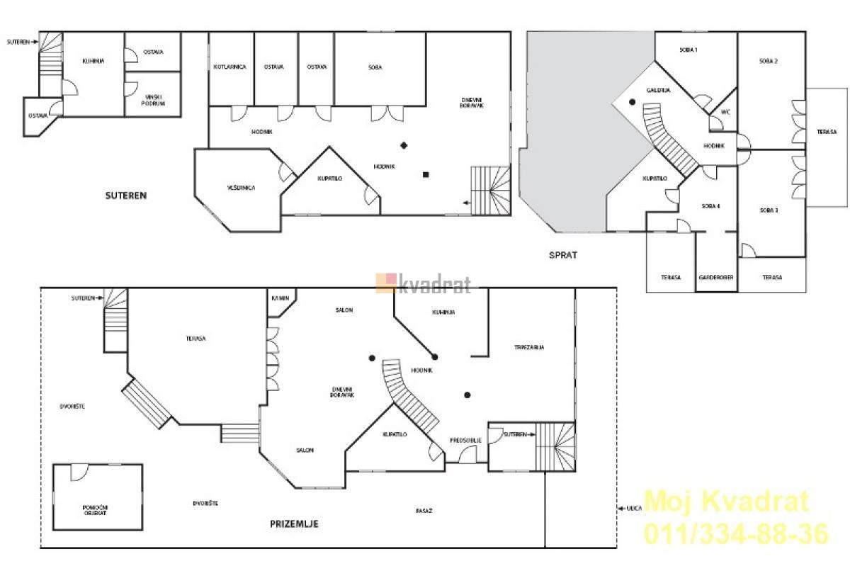
Zemun - Pregrevica kuća, 765m2 (tri terase 76m2), Po+SUT+PR+I+Ptk, grafitno podno grejanje, telefon, interfon, podrum, šest parking mesta, četiri ostave, struja voda, kanalizacija, asfalt, plac 757m2, letnjikovac U ponudi luksuzna kuća u mirnoj ulici sa pogledom na Dunav, za udoban život. Kuća se sastoji iz više nivoa. PRIZEMLJE: raskošan dnevni boravak sa kaminom, dvostrano orijentisan i izlazi na terasu i predivno veliko dvorište, moderno opremljena kuhinja sa trpezarijom, kupatilo sa prirodnom ventilacijom. Bruto površina prizemlja iznosi 296m2, a neto 243m2. Iz prizemlja se silazi u suteren, koji se sastoji iz dva dela SUTEREN: I deo: višenamenske prostorije - dnevni boravak, hodnik, kupatilo, kotlarnica, soba, vešernica i tri ostave; II deo: ulaz u drugi deo je iz dvorišta - vinski podrum, kuhinja, ostava i toalet; SPRAT: hodnik, četiri sobe, master kupatilo i toalet; Prva soba je master spavaća soba (20m2) sa sopstvenim kupatilom (9m2) koje ima prirodnu ventilaciju, garderoberom (7m2) i izlazom na terasu površine 8m2; Druga soba (13m2) poseduje garderober sa prozorom (3m2); Treća soba (19m2) izlazi na terasu površine 9m2; Četvrta soba (14m2) izlazi na terasu površine 5m2; Kuća poseduje i prazan tavanski prostor (betonska ploča). Oko kuće je prelepo dvorište sa letnjikovcem i pomoćnim objektom (trpezarija, roštilj). Ulazno dvorište je sa nadstrešnicom i parking mestima za tri vozila, dok su ispred kuće još tri pripadajuća parking mesta. Za svaku preporuku! Vredi pogledati! Uknjižena na 765m2 građevinske površine. Agencijska provizija 2% Interfon, Telefon, Ostava Gradska kanalizacija
ID nekretnine 200102
Izmena 15.01.2026
Ažuriran 07.04.2026
Link https://www.e-Belgrade.net/nekretnina/zemun-kuca-prodaja-1496000eur-765m2-8-0-soba-200102
Kontakt
MOJ KVADRAT D.O.O.
MOJ KVADRAT D.O.O.
Beograd
Adresa: Beogradska 71/II
Broj u registru: 167
Pošalji upit