Luksuzna nvg, prestižna Vračarska lokacija ID#10446

pregledajte 20 slika
Bild 1962700
Bild 1962701
Vrsta stan – prodaja
Lokacija Beograd – Vračar – Hram
Adresa Stojana Protića
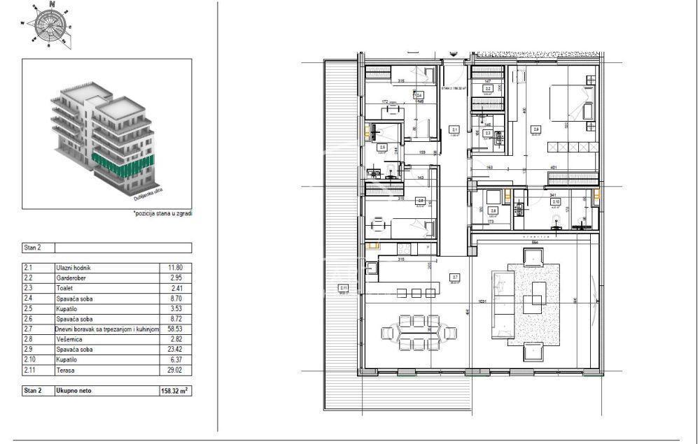
stan površina 158m²
Sobe 3,0 (Trosoban)
Kupatila 1 kupatila
Terase
Sprat 2 od 6 spratova,
Grejanje centralno
Dodatno
Cena 825.000€ [ 5221 €/m² ]
Na prodaju moderni stanovi u jednom od najprestižnijih novoizgradjenih objekata. Nalaze se u ulici Stojana Protićai, jednoj od najpoželjinijih lokacija na Vračaru. Odlikuju ih savremen dizajn,vrhunski materijali i funkcionalan raspored. Stanovi pružaju idealan spoj udobnosti i modernog načina života sa blizinom svih važnih sadržaja - škola, vrtića, prodavnica i restorana. Ovaj ekskluzivan stambeni objekat nalazi u najlepšem delu Vračara u neposrednoj blizini Hrama. Stanovi će biti opremljeni po najvišim arhitektonskim i tehnološkim standardima koji će sa sigurnošću ispunititi sve zahteve modernog života. Ova prelepa zgrada se nalazi na samo nekoliko koraka od vrtića i škola, te je kao takva pogodna za porodice za decom, ali i za sve one koji žele luksuzniji način života na najatraktivnijoj beogradskoj lokaciji. -Zidovi u sanitarnim čvorovima će biti obloženi italijanskim pločicama prve klase po izboru budućeg vlasnika stana. -Zvučna obrada podova, troslojni hrastov parket prve klase -Ulazna vrata na stanovima su protivprovalna visokog kvaliteta marke “BOSAL” -Unutrašnja stolarija vrata marke “BOSAL” plotovi od punog drveta ili medijapana sa završnom obradom bajcovanjem i lakiranjem (poliuretanski lak), štokovi od drveta. Okovi uvozni. Spoljna stolarija alu – drvo i troslojno staklo -Grejanje putem grejnih tela priključenih na sistem centralnog grejanja koje se snabdeva od beogradskih elektrana. -Visina plafona bez spuštanja je 280cm. Povraćaj PDV-a za kupce prvog stana. Agencijska provizija 2% Agent:Dragana Krstić, br. licence:6057 "Art nekretnine" d.o.o. Beograd Reg. br.339 011/26-20-734 DK08 .
ID nekretnine 198943
Izmena 23.05.2025
Ažuriran 23.05.2026
Link https://www.e-Belgrade.net/nekretnina/vracar-stan-prodaja-825000eur-158m2-trosoban-198943
Kontakt
Art nekretnine
Art nekretnine
Beograd
Adresa: Dositejeva 9
Broj u registru: 339
Pošalji upit