Vračar, Vardarska ugao sa Marulićevom, stan od 85,07 m2 ID#5

pregledajte 12 slika
Bild 2224375
Bild 2224376
Vrsta stan – prodaja
Lokacija Beograd – Vračar – Čubura
Adresa Vardarska
stan površina 85m²
Sobe 3,0 (Trosoban)
Terase
Sprat 1 od 5 spratova,
Grejanje centralno
Dodatno
Cena 365.000€ [ 4294 €/m² ]
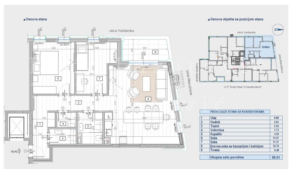
Luksuzan stan od 85,07 m2, po strukturi 3.0 soban sa vanstandardnom visinom plafona od 3 m, u završnoj fazi izgradnje se nalazi u Vardarskoj ulici, ugao sa Marulićevom ulicom, na Vračaru. Zgrada je u završnoj fazi izgradnje, očekuje se da u martu mesecu bude na 80% izgrađenosti. U neposrednoj blizini nalazi se više škola, osnovna škola Kralj Petar, centar za obrazovanje, fudbalski i košarkaški tereni. Stan se sastoji od ulaza, dnevnog boravka sa trpezarijom, posebne kuhinje, dve spavaće sobe i kupatila i biće opremljen najkvalitetnijom uvoznom opremom. Zgrada će biti priključena na daljinski sistem grejanja sa liftom i luksuznim ulaznim holom. Završetak radova i useljenje u zgradu je predviđeno za maj 2026.godine Postoji mogućnost kupovine jednog ili više garažnih mesta. Cena stana je 365,000€ sa uračunatim PDVom. Agencijska provizija u skladu sa opštim uslovima poslovanja.
ID nekretnine 216884
Izmena 13.02.2026
Ažuriran 07.04.2026
Link https://www.e-Belgrade.net/nekretnina/vracar-stan-prodaja-365000eur-85m2-trosoban-216884
Kontakt
Kaća Lazarević i Marasović
Kaća Lazarević i Marasović
Beograd
Adresa: Tomaša Ježa 9
Broj u registru: 1878
Pošalji upit