Beograđanka, Kralja Milana, stan-investicija
pregledajte 5 slika
| Vrsta | stan – prodaja |
| Lokacija | Beograd – Vračar – Cvetni trg |
| Adresa | Kralja Milana |
| stan površina | 50m² , uknjižena nekretnina , uknjižena nekretnina |
| Sobe | 2,0 (Dvosoban) |
| Terase | |
| Sprat | od 1 spratova, |
| Grejanje | Podno grejanje |
| Dodatno | |
| Cena | 247.000€ [ 4940 €/m² ] |
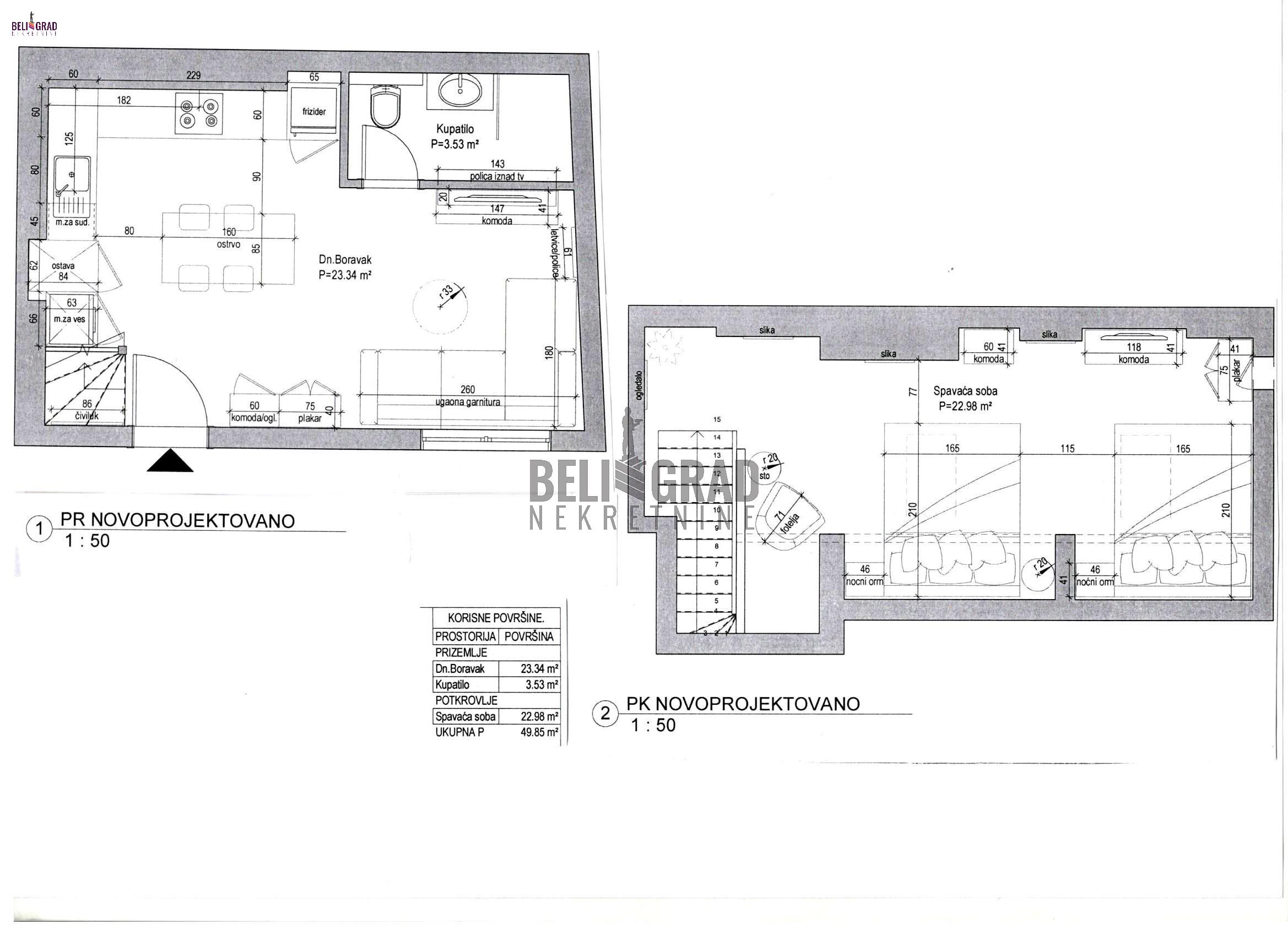
| Luksuzno dizajniran i opremljen dvosoban stan, u najužem centru grada, na savršenoj mikro-lokaciji. Koncipiran je kao dvoetažni stan, sa posebnim ulazom i uređenim prilazom. U donjem delu, površine 27m2, nalazi se dnevni boravak, kuhinja sa trpezarijom i kupatilo. Gornji deo čini prostrana spavaća soba površine 23m2. Stan je u potpunosti i vrlo kvalitetno renoviran, čime je dobijena savršena kombinacija stare gradnje i novih trendova i materijala u gradnji i uređenju enterijera. U objektu je ugrađena nova električna i hidro instalacija, nova fasada sa termoizolacijom, kompletno nov krovni pokrivač, vrhunska stolarija i sigurnosna ulazna vrata, podno grejanje i dve inverter klime. U stanu je sačuvana izvorna unutrašnja visina 3m, što doprinosi osećaju prostranosti. Prostor je uknjižen bez kvadrature, a navedene kvadrature su izvedene iz arhitektonskog projekta. Stan se prodaje kompletno opremljen i namešten. Na Airbnb-u je dobio visoku ocenu 9,2. Ima maksimalnu mesečnu iskorišćenost, sa samo desetak slobodnih dana u toku cele godine, što ga čini izuzetno dobrom investicijom. Prostorije: dnevni boravak, kuhinja sa trpezarijom, spavaća soba, kupatilo. Agencijska provizija 2% | |
| ID nekretnine | 196164 |
| Izmena | 09.01.2026 |
| Ažuriran | 07.04.2026 |
| Link | https://www.e-Belgrade.net/nekretnina/vracar-stan-prodaja-247000eur-50m2-dvosoban-196164 |
Kontakt
Beli grad nekretnine
Beograd
Adresa: Bulevar Mihajla Pupina 3/4
Broj u registru: 759