Vračar, Hram Svetog Save - Stojana Protića, 158m2

pregledajte 20 slika
Bild 2118588
Bild 2118589
Vrsta stan – prodaja
Lokacija Beograd – Vračar – Hram – Hram Sv. Save
Adresa Stojana Protića
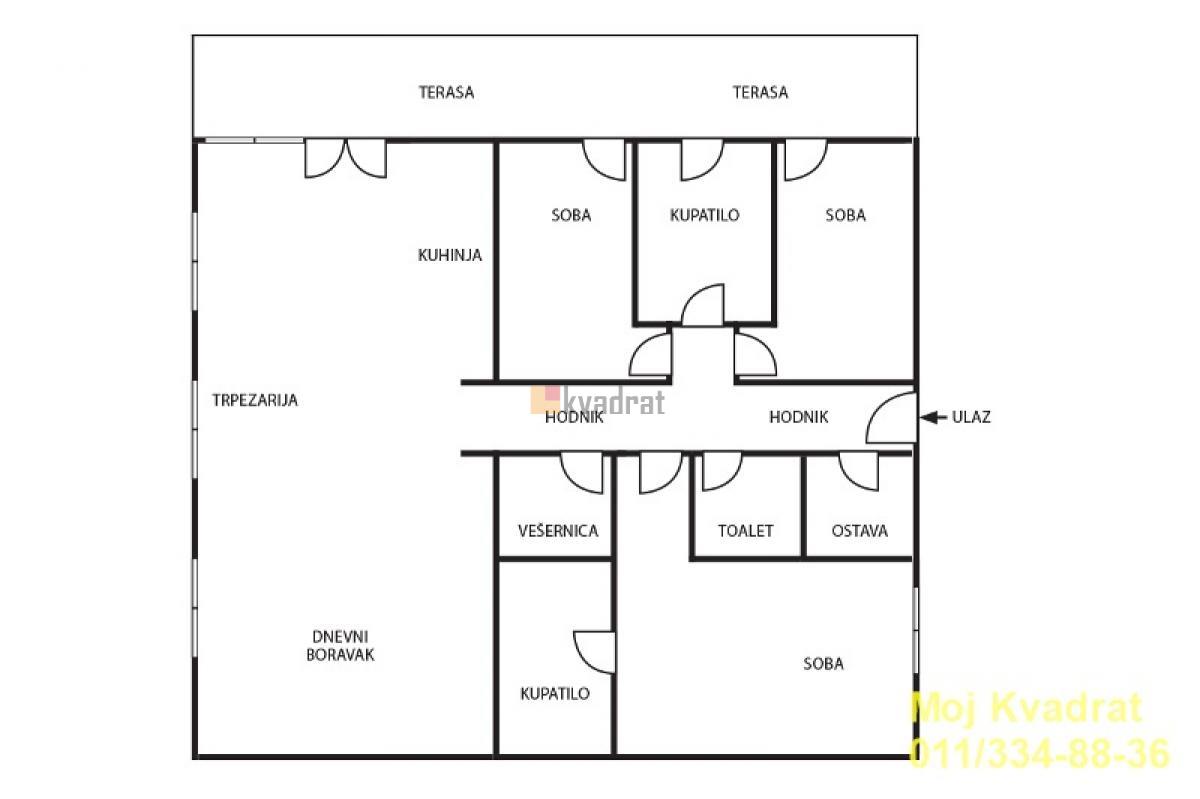
stan površina 158m²
Sobe 4,0 (Četvorosoban)
Terase Terasa
Sprat 1 od 5 spratova, · sa Liftom
Grejanje centralno
Stanje novogradnja
Garaža / Parking 1 X Parking
Dodatno
Cena 825.000€ [ 5221 €/m² ]
Vračar, Hram Svetog Save - Stojana Protića 4.0, 158m2 (terasa 29m2), 1/5, CG, klima, lift, video nadzor Odličan, svetao četvorosoban stan u kvalitetnoj novogradnji na prestižnoj lokaciji kod Hrama Svetog Save. Prostorije: prostran (58m2) dnevni boravak sa kuhinjom i trpezarijom (open space), glavna spavaća soba (23m2) sa sopstvenim kupatilom, dve manje sobe, kupatilo, garderober, vešernica, toalet i velika terasa. Objekat je visokog kvaliteta gradnje, fasada je obložena fundermaksom, kamenom i staklom. Fasadna stolarija je od aluminijumskih profila sa termomostom, a svi spoljašnji otvori su sa ugrađenim roletnama sa uvoznim okovima. Ulazna vrata su protivprovalna, marke Bosal. Unutrašnja stolarija-vrata marke Bosal. Spoljna stolarija je alu-drvo sa troslojnim staklom. Sanitarije prve klase strane proizvodnje. Hlađenje putem klima uređaja. Objekat je obezbeđen video nadzorom. U cenu stana je uračunat PDV. Mogućnost kupovine parking mesta po ceni od 40.000 eura sa uračunatim PDV-om. Očekivani rok za završetak radova je kraj 2023. godine. Građevinska dozvola. BEZ PROVIZIJE ZA KUPCE. Agent Sava Vuletić: 062/14-57-616 (licenca br.3573) Video nadzor, Klima, Nije prizemlje Nije poslednji sprat Gradska kanalizacija
ID nekretnine 194434
Izmena 25.10.2025
Ažuriran 22.05.2026
Link https://www.e-Belgrade.net/nekretnina/vracar-stan-825000eur-158m2-cetvorosoban-194434
Kontakt
MOJ KVADRAT D.O.O.
MOJ KVADRAT D.O.O.
Beograd
Adresa: Beogradska 71/II
Broj u registru: 167
Pošalji upit