Vračar, Vardarska ugao sa Marulićevom – stan od 91,58 m2 ID#

pregledajte 12 slika
Bild 2179747
Bild 2224372
Vrsta stan – prodaja
Lokacija Beograd – Vračar – Čubura
Adresa Vardarska
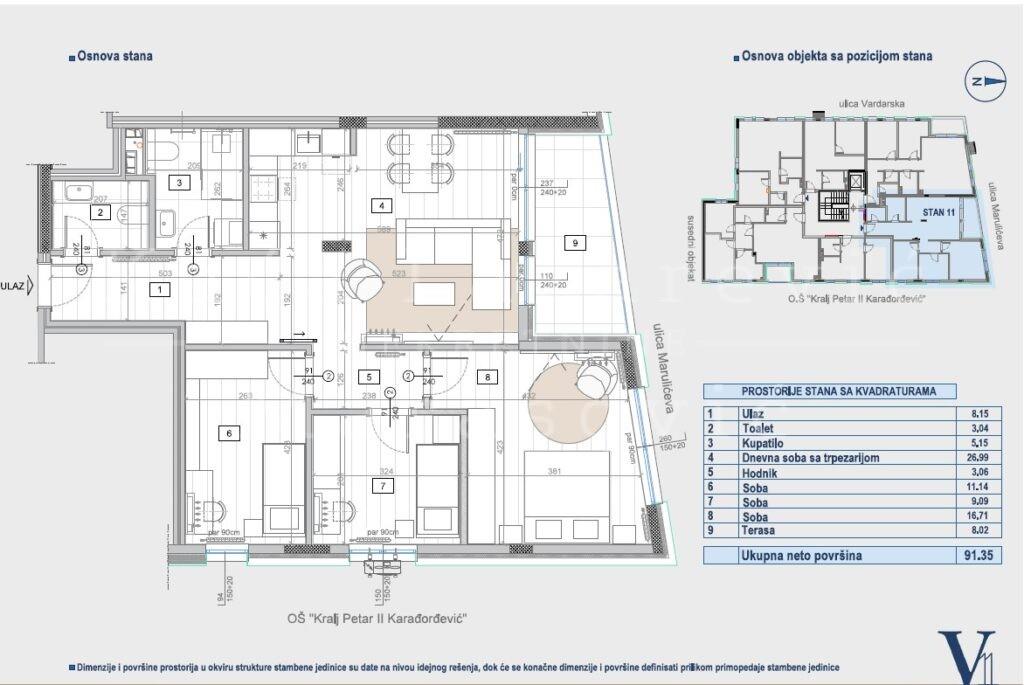
stan površina 91,58m²
Sobe 3,5 (Troiposoban)
Kupatila 1 kupatila
Terase
Sprat 2 od 4 spratova,
Grejanje centralno
Dodatno
Cena 399.000€ [ 4356 €/m² ]
Luksuzan stan od 91,58 m2, po strukturi 3.5 soban u završnoj fazi izgradnje se nalazi u Vardarskoj ulici, ugao sa Marulićevom ulicom, na Vračaru. U neposrednoj blizini nalazi se više škola, osnovna škola Kralj Petar, centar za obrazovanje, fudbalski i košarkaški tereni. Zgrada je u završnoj fazi izgradnje, očekuje se da u martu mesecu bude na 80% izgrađenosti. Stan je na 2.spratu luksuzne zgrade koja se sastoji od 2 nivoa garaže+Pr+4+Ps. Zgrada je moderno projektovana, slobodnostojeća sa različitim strukturama stanova. Stan se sastoji od ulaznog hodnika, toaleta, kupatila, dnevnog boravka sa trpezarijom i kuhinjom,hodnika, hodnika, tri spavaće sobe i terase i biće opremljen najkvalitetnijom uvoznom opremom. Zgrada će biti priključena na daljinski sistem grejanja sa liftom i luksuznim ulaznim holom. Završetak radova i useljenje u zgradu je predviđeno za maj 2026.godine Postoji mogućnost kupovine jednog ili više garažnih mesta. Cena stana je 399.000€ sa uračunatim PDVom. Agencijska provizija u skladu sa opštim uslovima poslovanja.
ID nekretnine 218437
Izmena 04.04.2026
Ažuriran 07.04.2026
Link https://www.e-Belgrade.net/nekretnina/vracar-stan-399000eur-91.58m2-troiposoban-218437
Kontakt
Kaća Lazarević i Marasović
Kaća Lazarević i Marasović
Beograd
Adresa: Tomaša Ježa 9
Broj u registru: 1878
Pošalji upit