Vračar, Vardarska ugao sa Marulićevom – stan od 85,11 m2, sa

pregledajte 13 slika
Bild 2051439
Bild 2051440
Vrsta stan – prodaja
Lokacija Beograd – Vračar – Čubura
Adresa Vardarska
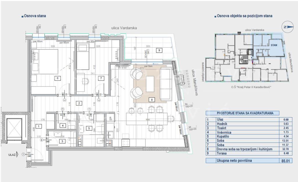
stan površina 85,11m²
Sobe 3,0 (Trosoban)
Kupatila 1 kupatila
Terase
Sprat 4 od 5 spratova,
Grejanje centralno
Dodatno
Cena 370.000€ [ 4347 €/m² ]
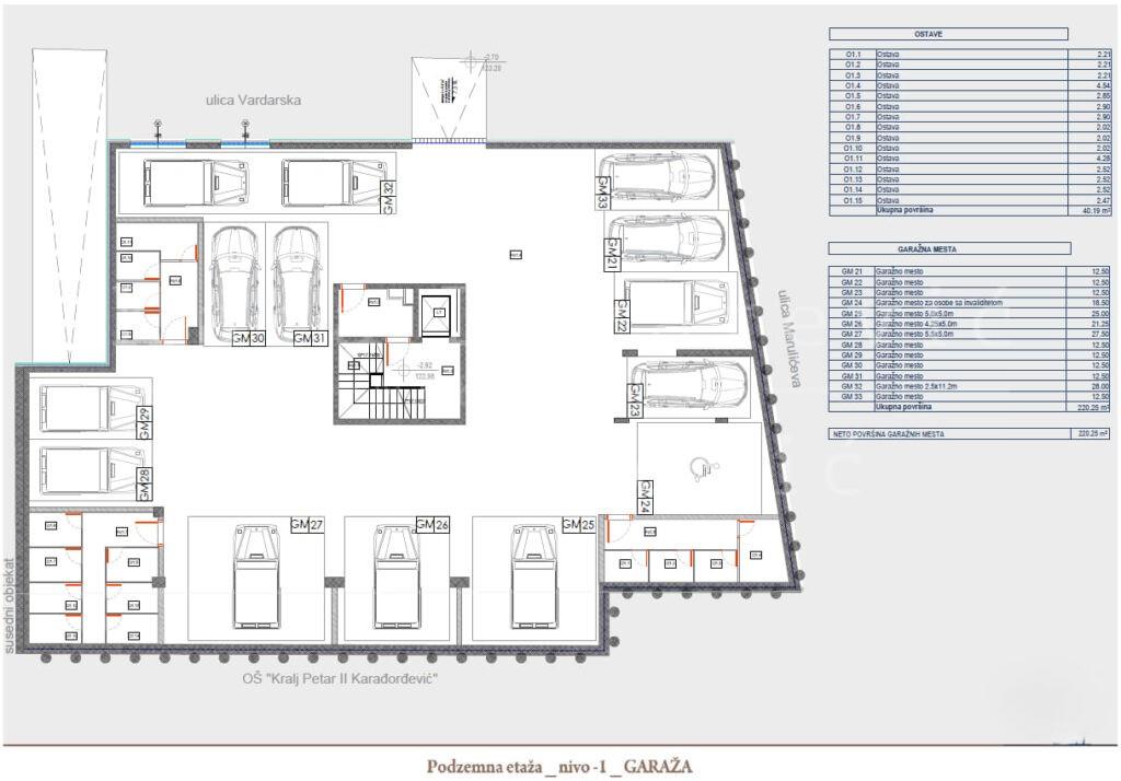
Luksuzan stan od 85,11 m2, po strukturi 3.0 soban u završnoj fazi izgradnje se nalazi u Vardarskoj ulici, ugao sa Marulićevom ulicom, na Vračaru. U neposrednoj blizini nalazi se više škola, osnovna škola Kralj Petar, centar za obrazovanje, fudbalski i košarkaški tereni. Zgrada je u završnoj fazi izgradnje, očekuje se da u martu mesecu bude na 80% izgrađenosti. Stan je na 4.spratu luksuzne zgrade koja se sastoji od 2 nivoa garaže+Pr+4+Ps. Zgrada je moderno projektovana, slobodnostojeća sa različitim strukturama stanova. Stan se sastoji od ulaznog hodnika, dnevnog boravka sa trpezarijom i kuhinjom, dve spavaće sobe, kupatila, gostinjskog toaleta, vešernice i terase i biće opremljen najkvalitetnijom uvoznom opremom. Zgrada će biti priključena na daljinski sistem grejanja sa liftom i luksuznim ulaznim holom. Završetak radova i useljenje u zgradu je predviđeno za maj 2026.godine Postoji mogućnost kupovine jednog ili više garažnih mesta po ceni od 35.000€ po garažnom mestu. Cena stana je 370.000€ sa uračunatim PDV-om. Agencijska provizija u skladu sa opštim uslovima poslovanja.
ID nekretnine 207366
Izmena 04.04.2026
Ažuriran 07.04.2026
Link https://www.e-Belgrade.net/nekretnina/vracar-stan-370000eur-85.11m2-trosoban-207366
Kontakt
Kaća Lazarević i Marasović
Kaća Lazarević i Marasović
Beograd
Adresa: Tomaša Ježa 9
Broj u registru: 1878
Pošalji upit