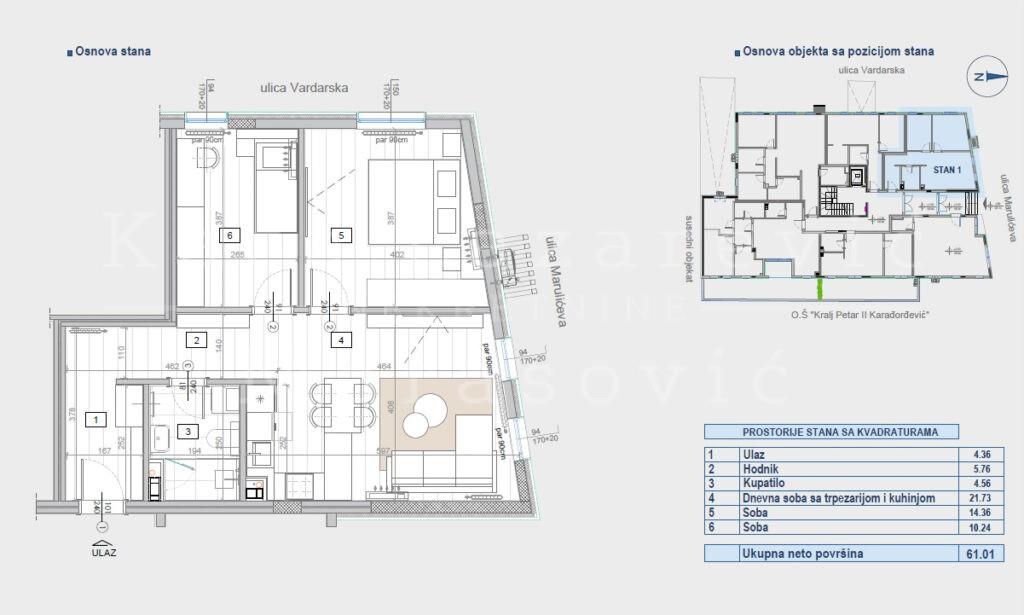
Vračar, Vardarska ugao sa Marulićevom – stan od 61,04 m2 ID#

pregledajte 11 slika
Bild 2051429
Bild 2051430
Vrsta stan , Prizemlje – prodaja
Lokacija Beograd – Vračar – Čubura
Adresa Vardarska
stan površina 61m²
Sobe 2,5 (Dvoiposoban)
Kupatila 1 kupatila
Terase
Sprat Prizemlje od 5 spratova
Grejanje centralno
Dodatno
Cena 261.000€ [ 4278 €/m² ]
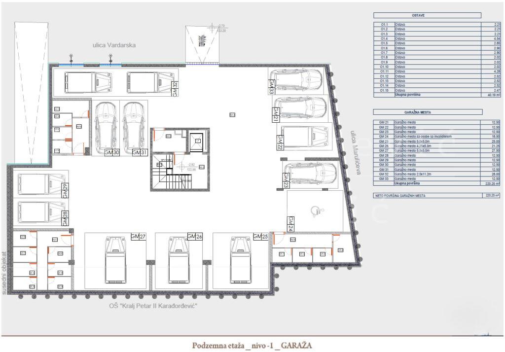
Luksuzan stan od 61,04 m2, po strukturi 2.5 soban u završnoj fazi izgradnje se nalazi u Vardarskoj ulici, ugao sa Marulićevom ulicom, na Vračaru. U neposrednoj blizini nalazi se više škola, osnovna škola Kralj Petar, centar za obrazovanje, fudbalski i košarkaški tereni. Zgrada je u završnoj fazi izgradnje, očekuje se da u martu mesecu bude na 80% izgrađenosti. Stan je u prizemlju luksuzne zgrade koja se sastoji od 2 nivoa garaže+Pr+4+Ps. Zgrada je moderno projektovana, slobodnostojeća sa različitim strukturama stanova. Stan se sastoji od ulaznog hodnika, dnevnog boravka sa trpezarijom, posebne kuhinje, dve spavaće sobe i kupatila i biće opremljen najkvalitetnijom uvoznom opremom. Zgrada će biti priključena na daljinski sistem grejanja sa liftom i luksuznim ulaznim holom. Završetak radova i useljenje u zgradu je predviđeno za maj 2026.godine Postoji mogućnost kupovine jednog ili više garažnih mesta. Cena stana je 261.000 € sa uračunatim PDVom. Agencijska provizija u skladu sa opštim uslovima poslovanja.
ID nekretnine 207365
Izmena 04.04.2026
Ažuriran 22.05.2026
Link https://www.e-Belgrade.net/nekretnina/vracar-stan-261000eur-61m2-dvoiposoban-207365
Kontakt
Kaća Lazarević i Marasović
Kaća Lazarević i Marasović
Beograd
Adresa: Tomaša Ježa 9
Broj u registru: 1878
Pošalji upit