Lokal 107m2, kod Slavije, Njegoševa, tri nivoa
pregledajte 2 slika
| Vrsta | poslovni prostor , lokal sa izlogom – izdavanje |
| Lokacija | Beograd – Vračar – Slavija |
| Adresa | Njegoševa |
| poslovni prostor površina | 107m² |
| Grejanje | etažno |
| Stanje | za renoviranje |
| Dodatno | Interfon Kablovska TV |
| Cena | 6.000€ [ 56 €/m² ] |
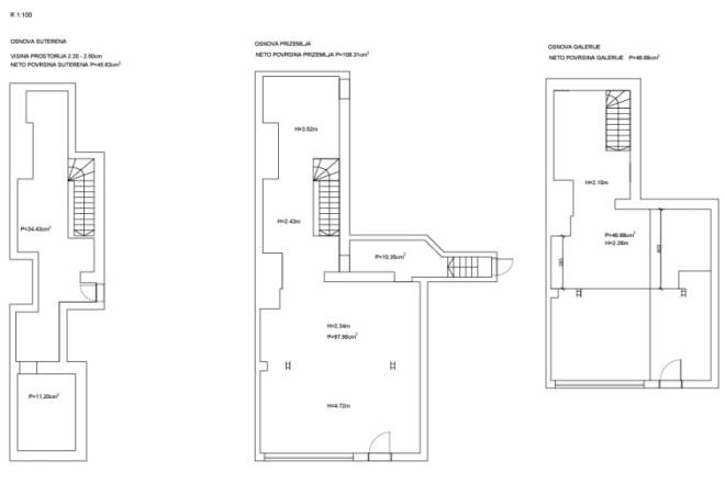
| U samom srcu Beograda, na jednoj od najatraktivnijih lokacija – Njegoševoj ulici, sa direktnim pogledom na Mitićevu rupu, izdaje se lokal od 200 m2, izuzetnog potencijala za razvoj ugostiteljskog objekta ili drugog komercijalnog sadržaja. Prostor se prostire na tri nivoa: prizemlje (107 m2) sa visinom plafona gotovo 5 m, idealno za prostor za sedenje, šank i izlog prema ulici; galerija (47 m2) koja može služiti kao dodatni deo za goste; i podrum (45 m2) predviđen za kuhinju, toalete i tehničke prostorije. Postoji mogućnost formiranja bašte od oko 50 m² na trotoaru ispred lokala, što ovaj prostor čini posebno pogodnim za restoran, bistro, kafić ili kafeteriju. Lokal je u izvornom stanju, ali deo radova je već započet u pravcu opremanja za ugostiteljsku namenu. Zakupac može ostvariti kompenzaciju ulaganja kroz umanjenje zakupnine, što omogućava prilagođavanje prostora sopstvenom konceptu i estetici. Zahvaljujući izuzetnoj frekvenciji prolaznika, odličnoj vidljivosti i centralnoj lokaciji, ovaj lokal predstavlja savršenu priliku za brend koji želi prepoznatljivo i prometno mesto u Beogradu. Posrednička naknada se obračunava u skladu sa Opštim uslovima poslovanja agencije "DIVIS NEKRETNINE" d.o.o. | |
| ID nekretnine | 212065 |
| Izmena | 14.10.2025 |
| Ažuriran | 14.10.2025 |
| Link | https://www.e-Belgrade.net/nekretnina/vracar-poslovni-prostor-6000eur-107m2-212065 |
Kontakt
Divis nekretnine
Beograd
Adresa: Bulevar despota Stefana 64a
Broj u registru: 5