Direktna prodaja-Luksuzna novogradnja ID#13386

pregledajte 6 slika
Bild 2181556
Bild 2181557
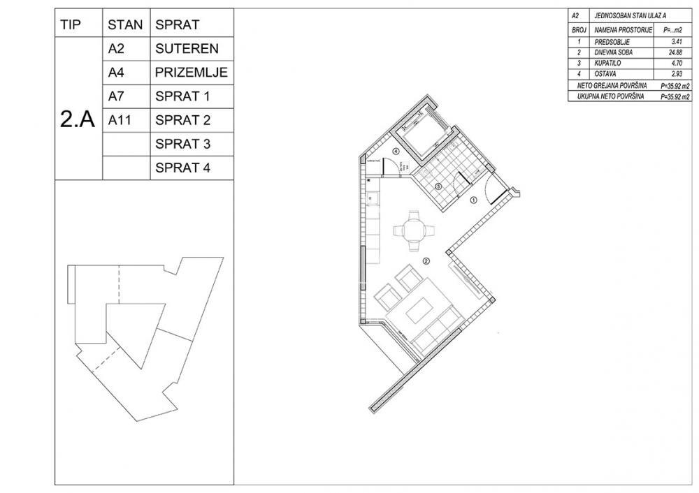
Vrsta stan , Prizemlje – prodaja
Lokacija Beograd – Voždovac – Vojvode Vlahovića
Adresa Generala Đoke Popovića
stan površina 36,45m²
Sobe 1,0 (Jednosoban)
Terase
Sprat Prizemlje od 4 spratova
Grejanje etažno
Garaža / Parking 1 X Parking
Dodatno
Cena 87.480€ [ 2400 €/m² ]
Sigurna budućnost za vašu porodicu počinje u našem kompleksu. Cena stanova je od 2400eur/m2+PDV. Na cenu iz oglasa se dodaje iznos PDVa od 10% Moderan stil gradnje, podređen porodičnom komforu. Na ušuškanoj lokaciji u kompleksu izuzetnog kvaliteta. Pored kompleksa je parcela koja je namenjena izgradnji sportskih sadržaja i zelenila. Uz objekat je predviđena izgradnja saobraćanice koja će taj deo grada povezivati sa autoputem. Višespratna zgrada sa tri odvojena ulaza Unutrašnje dvorište namenjeno odmoru, druženju i bezbednom dečjem boravku Garaža i parking, obezbeđeni za sve stanare Moderni materijali, kvalitetna izolacija i odlična funkcionalnost stanova. Objekat se gradi klima blokom debljine 20cm, oblaže se kamenom vunom debljine 10cm sa završnim slojem fasade od fasadnog maltera. Spoljna stolarija je aluminijumska sa termoprekidom, plastificirana spolja. Sigurnosna vrata na svim stanovima tipa Bosal ili slično. Keramika prve klase. Višeslojni parket tipa tarket ili slično. Etažno grejanje na struju, nezavisno za svaki stan. Rok završetka 04.2027. Veliki izbor različitih struktura. Izaberite svoj dom na vreme. Povraćaj PDV-a za kupce prvog stana. Bez plaćanja provizije za kupce. Agent: Nikola Franelić br. licence 505 Art nekretnine d.o.o. Beograd. Reg. br.339 0112620734 0694250146 .
ID nekretnine 218982
Izmena 04.03.2026
Ažuriran 07.04.2026
Link https://www.e-Belgrade.net/nekretnina/vozdovac-stan-87480eur-36.45m2-jednosoban-218982
Kontakt
Art nekretnine
Art nekretnine
Beograd
Adresa: Dositejeva 9
Broj u registru: 339
Pošalji upit