Trošarina, nvg, 74.64m2 ID#11112

pregledajte 1 slika
Bild 1993721
Vrsta stan – prodaja
Lokacija Beograd – Voždovac – Trošarina
Adresa Vojvode Stepe
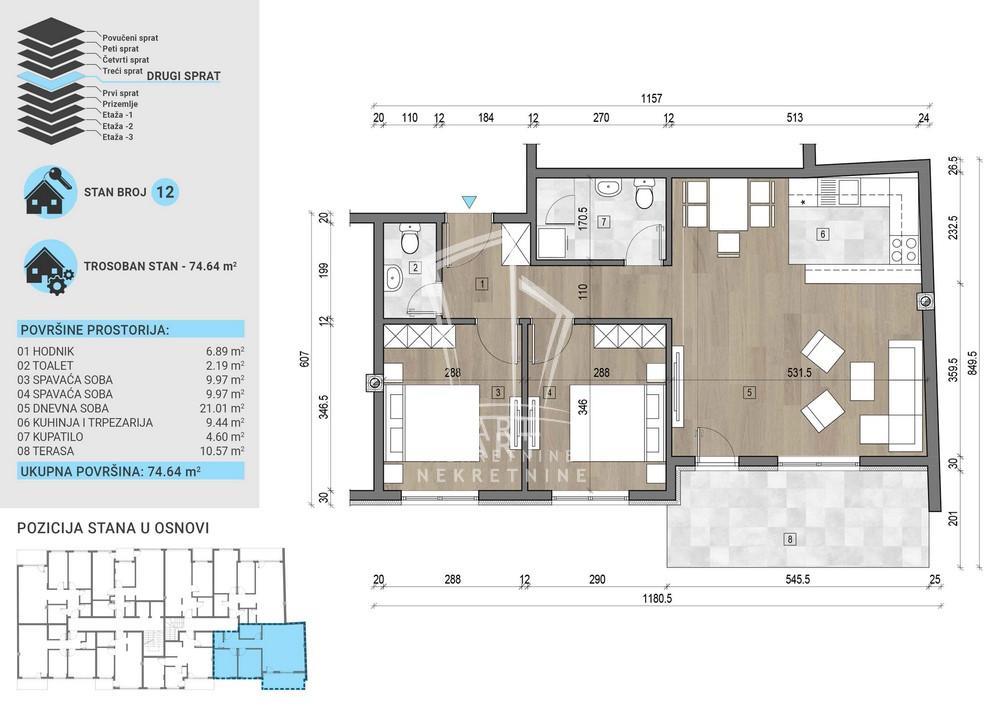
stan površina 74,64m²
Sobe 3,0 (Trosoban)
Terase
Sprat 2 od 6 spratova,
Grejanje podno
Dodatno
Cena 221.680€ [ 2969 €/m² ]
Prva faza izgradnje stambeno-poslovnog objekta na sjajnoj lokaciji u ulici Vojvode Stepe u blizini Velefarma. Lokacija poseduje mnoge prednosti zato što je udaljenost od centra 7 km, mirno okruženje, mnogi fakulteti u blizini, odlična infrastruktura. Objekat poseduje dva lifta. Ulaz sa vetrobranima. Centralno grejanje sa ugrađenim kalorimetrima. Nemačka stolarija prve klase. Keramika prve klase. Tarkett višeslojni parket. Garažna mesta na tri nivoa, dimenzije 2,5 x 5,0m2 Rok završetka izgradnje jun 2027. Povrat PDV-a za kupce prvog stana. Dobra saobraćajna povezanost sa svim delovima grada. U blizini sva potrebna infrastruktura neophodna za udoban život. Bez provizije za kupce Agent: Snježana Brašnjović br. licence 2704 Art nekretnine d.o.o. Beograd. Reg. br.339 011/2620 734 .
ID nekretnine 203206
Izmena 28.03.2026
Ažuriran 07.04.2026
Link https://www.e-Belgrade.net/nekretnina/vozdovac-stan-221680eur-74.64m2-trosoban-203206
Kontakt
Art nekretnine
Art nekretnine
Beograd
Adresa: Dositejeva 9
Broj u registru: 339
Pošalji upit