Prodaje se četvorosoban stan u urbanoj vili na Telepu sa dva kupatila - 87m2

pregledajte 12 slika
Bild 2280139
Bild 2280140
Vrsta stan – prodaja
Lokacija Novi Sad – Telep – -
Adresa
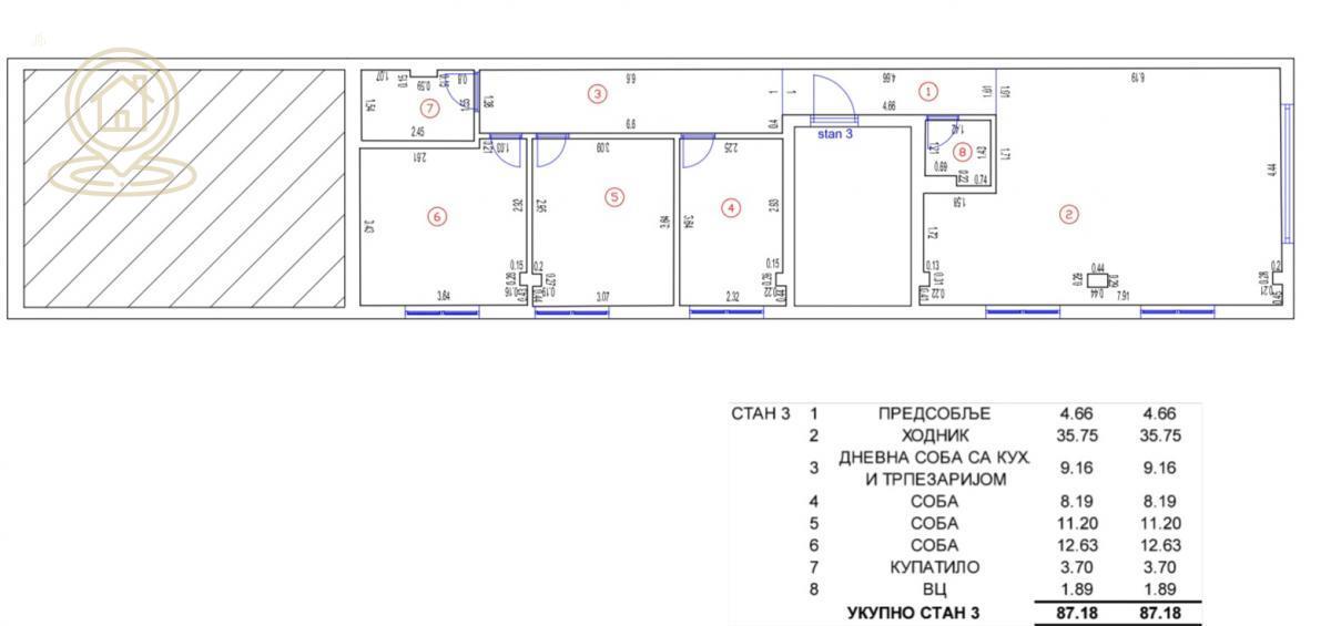
stan površina 87m² , uknjižena nekretnina , uknjižena nekretnina
Sobe 4,0 (Četvorosoban)
Terase
Sprat 2 od 2 spratova,
Grejanje gas
Stanje renoviran
Garaža / Parking 1 X Parking
Godina gradnje 2024
Dodatno
Cena 255.000€ [ 2931 €/m² ]
U ponudi je kompletno namešten četvorosoban stan na prodaju u Novom Sadu, na izuzetnoj lokaciji na Telepu, u mirnoj i porodičnoj ulici. Stan se nalazi na svega par minuta hoda od Bulevara Patrijarha Pavla i Bulevara Evrope, što ovu nekretninu čini idealnom kako za porodično stanovanje, tako i za investiciju. Stan je smešten na drugom spratu urbane vile i odlikuje se funkcionalnim rasporedom prostorija. U sklopu stana nalazi se velika terasa od 30m², sa mogućnošću zatvaranja ili proširenja, što dodatno povećava komfor i vrednost nekretnine. Uz stan dolazi jedno uknjiženo parking mesto, kao i mogućnost parkiranja još jednog vozila. Takođe, stan poseduje manju ostavu u haustoru, što pruža dodatni prostor za odlaganje. Ova nekretnina predstavlja odličnu priliku za sve koji traže prodaju stanova Novi Sad, četvorosoban stan na Telepu, odlična lokacija, mirno okruženje i kvalitetnu gradnju. Stan se prodaje radi selidbe i odmah je useljiv. Ako ste u potrazi za pouzdanom opcijom za kupovinu stana u Novom Sadu, ova ponuda zaslužuje vašu pažnju. Agencijska provizija u skladu sa opštim uslovima poslovanja. Kompas Nekretnine – vaš pouzdan partner u kupovini i prodaji nekretnina.Kuhinjski elementi, Sudopera, Plakari/Ormani, Kreveti, Šporet, Frižider, Veš mašina, Mašina za sudove, TV, Klima, Kablovska, Telefon, Internet, Video nadzor, Odmah useljiv Može na kredit Nije prizemlje Ostava
ID nekretnine 227741
Izmena 04.04.2026
Ažuriran 10.05.2026
Link https://www.e-Belgrade.net/nekretnina/telep-stan-255000eur-87m2-cetvorosoban-227741
Kontakt
Kompas Nekretnine
Kompas Nekretnine
Beograd
Adresa: Kumodraška 144
Broj u registru: 1596
Pošalji upit