LUX NAJKVALITETNIJA NOVOGRADNJA

pregledajte 25 slika
Bild 2062384
Bild 2062385
Vrsta stan – prodaja
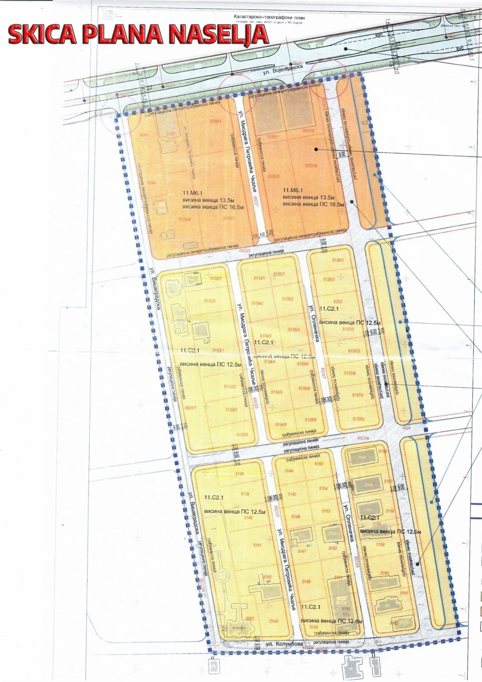
Lokacija Beograd – Surčin – Ledine
Adresa Miodraga Petrovića Čkalje 25
stan površina 45m² , uknjižena nekretnina , uknjižena nekretnina
Sobe 2,0 (Dvosoban)
Kupatila 1 kupatila
Terase Terasa
Sprat 1,
Grejanje etažno
Stanje novogradnja
Godina gradnje 2025
Dodatno Interfon Video nadzor Kablovska TV
Cena 117.000€ [ 2600 €/m² ]
SA PONOSOM PONOSOM VAM MOZEMO REĆI DA GRADIMO STAMBENI KOMPLEKS OD 50.000 M2.......... NA LEDINAMA-NOVOM SURČINU ,STAMBENE ZGRADE SA GRAĐEVINSKOM DOZVOLOM.......... Kompletna ponuda na: https://www.prelicinvest.com NAJKVALITETNIJA NOVOGRADNJA NA LEDINAMA,LISTELE FASADA I MERMER... NAJUREĐENIJE NASELJE,RAĐENO SA PLANOM DETALJNE REGULACIJE……. Građevinska dozvola broj ROP- SRN-2194-CPIH-4/2019 Građevinska dozvola broj ROP- SRN-15616-CPI-16/2020 Građevinska dozvola broj ROP- SRN-5699-CPI-3/2021 Građevinska dozvola broj ROP-SRN-24111-CPI-2/2022 Građevinska dozvola broj ROP-SRN-24011-CPI-1/2023 Građevinska dozvola broj ROP-SRN-30136-CPIH-6/2024 Građevinska dozvola broj ROP-SRN-16176-CPIH-7/2025 KUPOVINA DIREKTNO OD INVESTITORA....................... PRODAJA ISKLJUČIVO SAMO ZA PLAĆANJE U GOTOVINI ILI PREKO RAČUNA......... U PONUDI STANOVI OD 29 DO 115 M2........ Na najlepšem i najurbanijem delu Ledina, kod nove crkve Sv. Apostola Mateja stambeni kompleks od preko 50.000 m² ,trenutno se gradi ili izgrađeno 20.000 m2. U novoplaniranom kompleksu zgrada sa kompletnim urbanim sadržajima (pošta,banka,supermarket,restoran,apoteka,vrtić,uslužne delatnosti ,sve navedeno trenutno u izgradnji osim vrtića) i delimično izgrađenom infrastrukturom ( asfaltirane ulice širine 6 i 9 m, ulična rasveta,nova Trafostanica i 3 u izgradnji itd .) . Kompleks je odlično pozicioniran u neposrednoj blizini stajališta 7 linija gradskog prevoza na 5 min od novog Beograda i 15 min od centra grada,u blizini aerodroma i novog auto puta sa prelepim pogledom sa prostranih terasa na Novi Beograd,savske mostove,Banovo brdo,Košutnjak,Avalu,Beograd na vodi , budući nacionalni stadion,i Expo centar... Zgrada je visokog arhitektonskog kriterijuma projektovana od strane licenciranog biroa.Stan je prvoklasno odrađen sa najkvalitetnijim proverenim materijalima ugrađen po svim propisanim građevinskim standardima (nemačka PVC spoljna stolarija , termoizolacija, vrhunska fasada, unutrašnja stolarija lakirani medijapan sa širokom štok-lajsnom,hrastov parket, keramika prve klase Italijanska ili Španska,aluminijumski radijatori firme global,prava termo izolovana sigurnosna ulazna vrata, video nadzor oko cele zgrade i naselja, Video interfon u svakom stanu sa aplikacijom,itd.) Postoji mogućnost da se kupi parking mesto.
ID nekretnine 208275
Izmena 19.11.2025
Ažuriran 19.11.2025
Link https://www.e-Belgrade.net/nekretnina/surcin-stan-prodaja-117000eur-45m2-dvosoban-208275
Kontakt
Prelic Invest d.o.o
Prelic Invest d.o.o
Beograd
Adresa: Oplenačka 24 Ledine - Surčin
Pošalji upit