Art And Spa Rezidencija – Topličin Venac

pregledajte 40 slika
Bild 2185972
Bild 2185975
Vrsta stan – prodaja
Lokacija Beograd – Stari Grad – Stari Grad lokacija – Topličin venac
Adresa Gračanička
stan površina 130m² , uknjižena nekretnina , uknjižena nekretnina
Sobe 3,0 (Trosoban)
Terase Lodja
Sprat 1 od 3 spratova,
Grejanje centralno
Garaža / Parking 1 X Garaža1 X Parking
Podrum Podrum
Dodatno
Cena 630.000€ [ 4846 €/m² ]
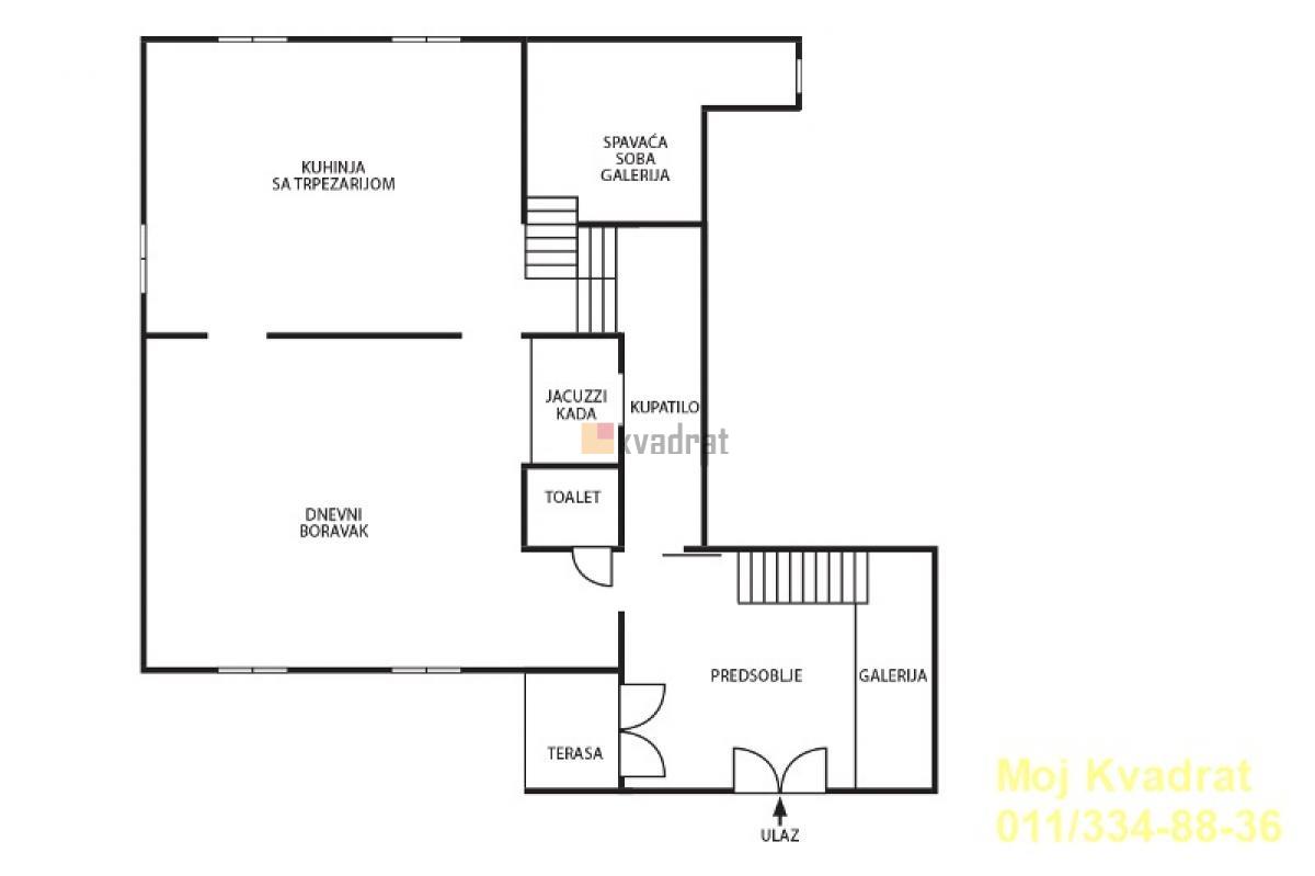
Stari grad, Topličin venac - Gračanička 3.0, 130m2, lođa, 1/3, CG, podrum, parking, garaža Art & Spa Rezidencija – Topličin Venac Ekskluzivan dizajnerski stan u samom centru Beograda. Retko u ponudi! Potpuno renoviran, luksuzno uređen stan sa 100 m² + oko 30 m² galerija, dve spavaće sobe (bračna + single), velikom dnevnom sobom i impresivnom spa zonom sa ugradnim jacuzzi-jem. Kupatilo sa mozaik tepidarijum ležaljkom i walk-in tušem. Smaragdna kuhinja sa mermerom i premium tehnikom. Loggia gleda na mirno zeleno dvorište. Stan je idealan za hedoniste, parove, kreativce ili luxury rent — unikatan prostor u centru grada. U blizini se nalazi javna garaža. Uknjižen na 96m2 korisne površine. Agencijska provizija 2% Art & Spa Residence – Topličin Venac Exclusive designer apartment in the very heart of Belgrade. Rare on the market! Fully renovated luxury home with 100 m² + approx. 30 m² of gallery space, two bedrooms (double + single), a spacious living room and an impressive SPA zone with a built-in jacuzzi. Bathroom with a mosaic tepidarium lounger and walk-in shower. Emerald kitchen with marble and premium built-in appliances. Loggia overlooking a quiet green courtyard. Perfect for hedonists, couples, creatives or luxury rental — a truly unique property in downtown Belgrade. There is a public garage nearby. Registered at 96m2. Agency commission 2% Art & Spa Резиденция – Топличин Венац Эксклюзивная дизайнерская квартира в центре Белграда. Редкое предложение! Полностью обновлённая роскошная квартира: 100 м² + около 30 м² галерей, две спальни (двуспальная + односпальная), просторная гостиная и впечатляющая SPA-зона с встроенной джакузи. Ванная с мозаичным тепидариумом и walk-in душевой. Изумрудная кухня с мрамором и премиальной техникой. Лоджия с видом на тихий зелёный двор. Идеально для ценителей комфорта, пар, творческих людей или luxury-аренды — уникальная недвижимость в центре города. Неподалеку имеется общественный гараж. Зарегистрирован в 96м2. Комиссия агентства 2% Nije prizemlje Nije poslednji sprat Gradska kanalizacija
ID nekretnine 219358
Izmena 02.03.2026
Ažuriran 23.05.2026
Link https://www.e-Belgrade.net/nekretnina/stari-grad-stan-630000eur-130m2-trosoban-219358
Kontakt
MOJ KVADRAT D.O.O.
MOJ KVADRAT D.O.O.
Beograd
Adresa: Beogradska 71/II
Broj u registru: 167
Pošalji upit