Stari grad, Skupština - Kosovska, 156m2

pregledajte 13 slika
Bild 1901991
Bild 1901992
Vrsta stan – prodaja
Lokacija Beograd – Stari Grad – Skupština
Adresa Kosovska
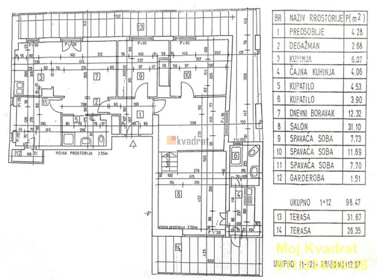
stan površina 156m² , uknjižena nekretnina , uknjižena nekretnina
Sobe 5,0 (Petosoban)
Terase Terasa
Sprat 8 od 8 spratova, · sa Liftom
Grejanje centralno
Godina gradnje 1963
Dodatno
Cena 600.000€ [ 3846 €/m² ]
Stari grad, Skupština - Kosovska 5.0, 156m2 (terasa 58m2), CG, lift, 8/8, telefon, interfon Izuzetan, funkcionalan i autentičan stan sa dva ulaza, na osmom spratu u zgradi od osam spatova. Ima tri spavaće sobe, dve dnevne sobe i dva kupatila. Stan je za kompletno renoviranje. Uknjižen na 98m2 korisne površine, mereno sa terasom ima 156m2. Agencijska provizija 2% Agent: Gordana Milošević 069/129-79-72 (licenca br.1763) Interfon, Telefon, Nije prizemlje Odmah useljiv Stara gradnja. Gradska kanalizacija
ID nekretnine 195025
Izmena 21.09.2025
Ažuriran 23.05.2026
Link https://www.e-Belgrade.net/nekretnina/stari-grad-stan-600000eur-156m2-petosoban-195025
Kontakt
MOJ KVADRAT D.O.O.
MOJ KVADRAT D.O.O.
Beograd
Adresa: Beogradska 71/II
Broj u registru: 167
Pošalji upit