Vrhunska lokacija - trosoban stan

pregledajte 2 slika
Bild 2245105
Bild 2245106
Vrsta stan – prodaja
Lokacija Niš – Stari Grad – Centar i Terazije – Centar
Adresa
stan površina 64m²
Sobe 3,0 (Trosoban)
Terase Terasa
Sprat 4 od 4 spratova, · sa Liftom
Grejanje
Garaža / Parking 1 X Parking
Podrum Podrum
Dodatno
Cena 158.400€ [ 2475 €/m² ]
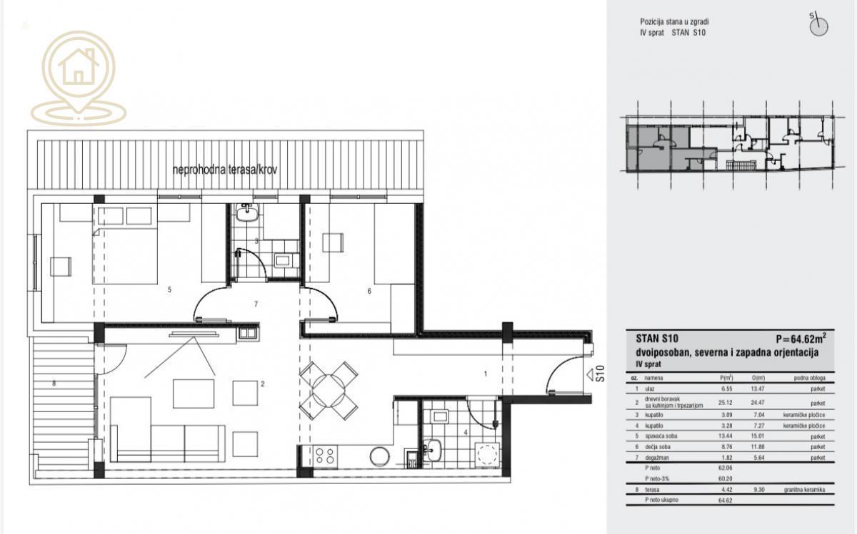
Na prodaju funkcionalan trosoban stan površine 64,62 m², koji se nalazi na IV spratu stambene zgrade. Stan je severne i zapadne orijentacije, što omogućava prijatnu temperaturu tokom leta i dosta prirodne svetlosti u popodnevnim satima. Strukturu stana čine ulazni hodnik, prostran dnevni boravak sa kuhinjom i trpezarijom, dve spavaće sobe, dva kupatila, kao i terasa. Raspored prostorija je veoma praktičan i pogodan kako za porodičan život, tako i za izdavanje. Stan se nalazi na izuzetnoj lokaciji, u neposrednoj blizini Delta Planet Niš, kao i Doma zdravlja, prodavnica, škole, vrtića i svih sadržaja potrebnih za svakodnevni život, što ovu nekretninu čini odličnim izborom za život ili investiciju. Video nadzor, Video interfon,
ID nekretnine 224550
Izmena 08.03.2026
Ažuriran 15.04.2026
Link https://www.e-Belgrade.net/nekretnina/stari-grad-stan-158400eur-64m2-trosoban-224550
Kontakt
Kompas Nekretnine
Kompas Nekretnine
Beograd
Adresa: Kumodraška 144
Broj u registru: 1596
Pošalji upit