Prodaja četvorosobnog penthouse stana Novi Sad – Royal Residency Popovica, 107m2 + 2 terase 60m2, garaže, odlična lokacija

pregledajte 5 slika
Bild 2280093
Bild 2280094
Vrsta stan – prodaja
Lokacija Novi Sad – Sremska kamenica - Popovica – -
Adresa
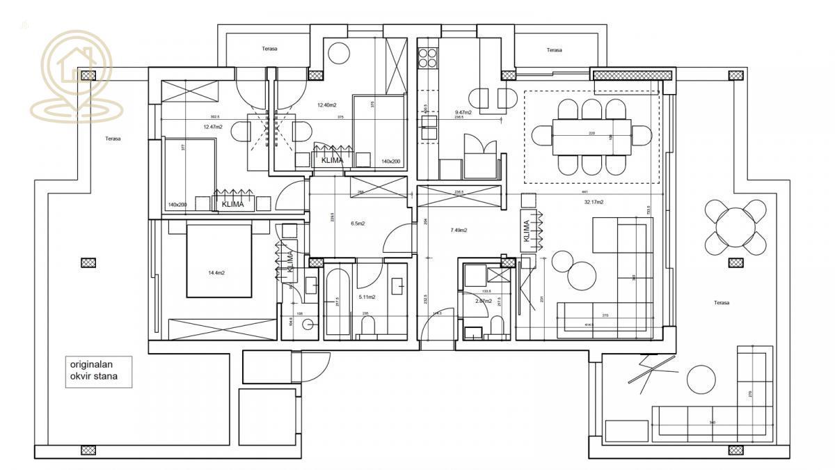
stan površina 167m² , uknjižena nekretnina , uknjižena nekretnina
Sobe 4,0 (Četvorosoban)
Terase
Sprat 2,
Grejanje podno
Stanje u izgradnji
Garaža / Parking 1 X Parking
Dodatno
Cena 412.000€ [ 2467 €/m² ]
Prodaja stanova Novi Sad – u ponudi je luksuzan četvorosoban penthouse stan u Novom Sadu, u ekskluzivnom zatvorenom kompleksu Royal Residency Popovica, na izuzetnoj lokaciji, svega nekoliko minuta vožnje od centra grada. Penthouse ima 107m2 stambenog prostora, uz dve prostrane terase ukupne površine oko 60m2 (po 30m2), sa otvorenim panoramskim pogledom na Frušku goru i Novi Sad. Stan se nalazi u završnoj fazi gradnje, a useljenje je planirano za maj 2026. godine. Uz stan dolaze dve garaže ukupne površine 40m2, smeštene jedna do druge, sa direktnim pristupom liftu, što dodatno povećava komfor i vrednost ove nekretnine. Raspored – četvorosoban penthouse stan Prostran dnevni boravak sa trpezarijom i kuhinjom otvorenog tipa Izlaz na veliku terasu idealnu za letnju trpezariju i lounge zonu Dve komforne spavaće sobe Glavna spavaća soba sa sopstvenom terasom i privatnom tuš kabinom Kupatilo sa ugradnim tušem i premium keramikom Dodatni toalet u hodniku Predsoblje i ostava sa dovoljno prostora za odlaganje Stan je izvođen u višem standardu u odnosu na osnovni investitorski paket – ugrađena je kvalitetna keramika višeg ranga, ugradni tuš sistemi, kvalitetni podovi i unutrašnja stolarija, što ovu nekretninu svrstava u sam vrh ponude prodaje stanova u Novom Sadu. Royal Residency Popovica – luksuzno stanovanje Royal Residency predstavlja zatvoreni luksuzni kompleks sa: 24h fizičkim i tehničkim obezbeđenjem Portirnicom Bazenima za svaku lamelu Dečjim igralištem Više od 2.000m2 zelenih površina i šetališta Kompleks je projektovan po kaskadnom arhitektonskom sistemu, čime je svakom stanu omogućen otvoren pogled ka gradu i Fruškoj gori, što ovu lokaciju čini jednom od najtraženijih kada je u pitanju prodaja stanova, kuća i luksuznih nekretnina u Novom Sadu. Ova nekretnina je idealna kako za porodično stanovanje, tako i kao investicija u segmentu prodaje i izdavanja stanova Novi Sad, luksuznih stanova, poslovnih prostora i premium nekretnina.Kuhinjski elementi, Sudopera, Plakari/Ormani, Kreveti, Šporet, Frižider, Veš mašina, Interfon, Video interfon, Penthouse
ID nekretnine 227730
Izmena 04.04.2026
Ažuriran 07.04.2026
Link https://www.e-Belgrade.net/nekretnina/sremska-kamenica-412000eur-167m2-cetvorosoban-227730
Kontakt
Kompas Nekretnine
Kompas Nekretnine
Beograd
Adresa: Kumodraška 144
Broj u registru: 1596
Pošalji upit