Terazijski plato, Lomina, šestosoban salonac
pregledajte 20 slika
| Vrsta | stan – prodaja |
| Lokacija | Beograd – Savski venac – Savski venac lokacija – Savski venac |
| Adresa | Lomina |
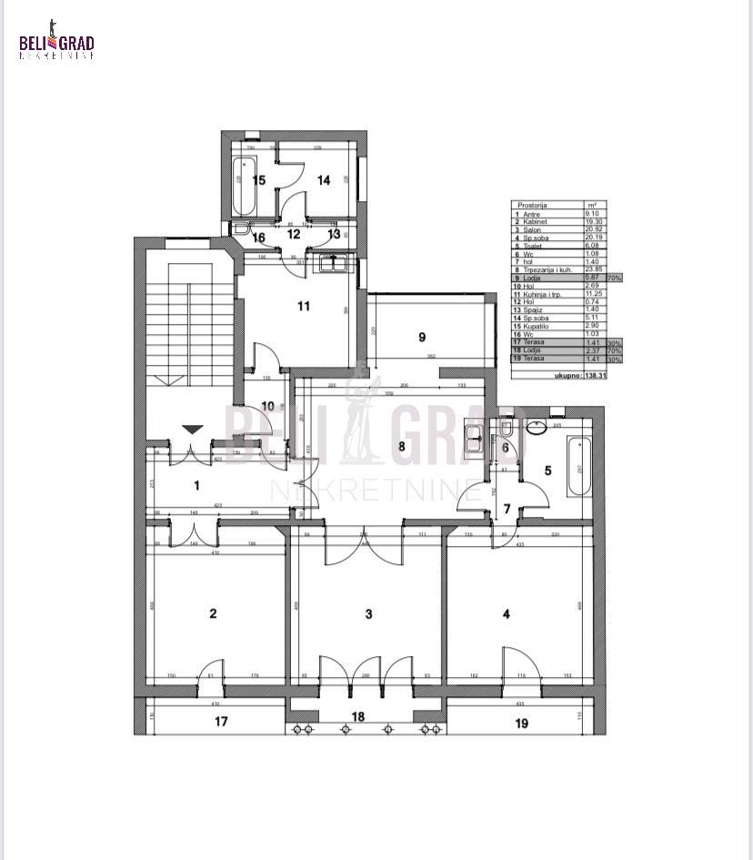
| stan površina | 138m² , uknjižena nekretnina , uknjižena nekretnina |
| Sobe | 6,0 (Šestosoban) |
| Terase | Terasa |
| Sprat | 3 od 3 spratova, |
| Grejanje | Etažno grejanje na struju |
| Dodatno | |
| Cena | 600.000€ [ 4347 €/m² ] |
| Terazijski plato, Lomina, 138m2, šestosoban, 3/3, EG, dva ulaza, dva kupatila, dva toaleta, četiri terase, uknjižen. Šestosoban stan salonskog tipa, nalazi se na pešačkoj distanci od Terazija, Trga Republike i ulice Kneza Mihaila. Stan zauzima ceo treći sprat, ima unutrašnu visinu 3m. Dvostrano je orijentisan, sa puno prirodnog svetla. Velika staklena terasa ima fantastičan panoramski pogled na reku i veliki deo grada. Po projektu, postoje dva ulaza, dva kupatila, dva toaleta i četiri terase. U stanu su formirane dve kuhinje, te prostor može da funkcioniše kao dve odvojene celine. U stanu su sačuvane tri kaljeve peći sa ugrađenim električnim grejačima. Iznad celog stana se nalazi tavanski prostor, zahvaljujući čemu je moguće stan proširiti u postojećem gabaritu potkrovlja. Pošto stan zauzima ceo treći sprat, urađen je građevinski projekat i dozvola za izgradnju još jednog nivoa iste kvadrature, čime bi stan dobio formu fantastičnog dvoetažnog stana, ukupne površine oko 240m2. U zgradi postoji mogućnost ugradnje panoramskog lifta. Zgrada se nalazi u mirnoj ulici bez saobraćaja, ima sopstveno dvorište i veliku baštu sa puno zelenila. Zgrada se odlikuje izuzetnom arhitektonskom vrednošću, pa predstavlja deo zaštićene ambijentalne celine. Agencijska provizija 2% | |
| ID nekretnine | 204685 |
| Izmena | 24.02.2026 |
| Ažuriran | 07.04.2026 |
| Link | https://www.e-Belgrade.net/nekretnina/savski-venac-stan-600000eur-138m2-sestosoban-204685 |
Kontakt
Beli grad nekretnine
Beograd
Adresa: Bulevar Mihajla Pupina 3/4
Broj u registru: 759