Lokal, Luksuzna novogradnja na Dedinju kod Pinka ID#7853

pregledajte 1 slika
Bild 1714713
Vrsta poslovni prostor , lokal – prodaja
Lokacija Beograd – Savski venac – Dedinje
Adresa Neznanog Junaka
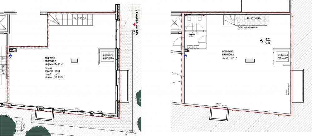
poslovni prostor površina 124,73m²
Grejanje toplotne pumpe
Dodatno
Cena 1.093.890€ [ 8770 €/m² ]
Lokal se nalazi na Dedinju, u novoj zgradi iz 2024.godine. Funkcionalan lokal, sa dobrim rasporedeom prostorija. Garažna mesta se prodaju uz lokal. 2 parking mesta 40.000eur plus PDV-20% . Agencijska provizija 2% Agent: Tamara Šljukić br. licence 2531 “Art nekretnine“ d.o.o. Beograd Reg. br.339 011/262-07-34 TŠ .
ID nekretnine 177775
Izmena 21.06.2024
Ažuriran 23.05.2026
Link https://www.e-Belgrade.net/nekretnina/savski-venac-poslovni-1093890eur-124.73m2-177775
Kontakt
Art nekretnine
Art nekretnine
Beograd
Adresa: Dositejeva 9
Broj u registru: 339
Pošalji upit