Četvorosoban stan u Skyline kompleksu u Beogradu, 107m2
pregledajte 22 slika
| Vrsta | stan – prodaja |
| Lokacija | Beograd – Savski venac – Savski venac lokacija – Skyline |
| Adresa | Kneza Miloša |
| stan površina | 107m² , uknjižena nekretnina , uknjižena nekretnina |
| Sobe | 4,0 (Četvorosoban) |
| Kupatila | 2 kupatila |
| Terase | Terasa |
| Sprat | 9 od 23 spratova, · sa Liftom |
| Grejanje | centralno |
| Stanje | novogradnja |
| Garaža / Parking | 1 X Garaža |
| Dodatno | Interfon Video nadzor Kablovska TV |
| Cena | 684.800€ [ 6400 €/m² ] |
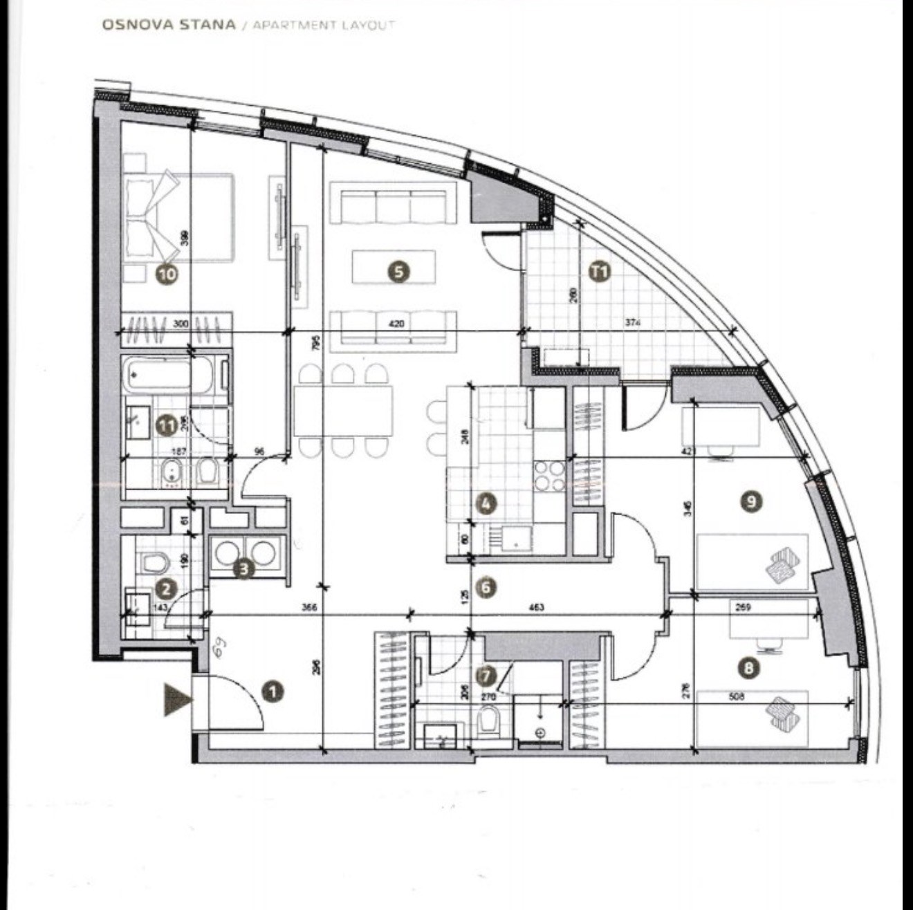
| Prodaje se četvorosoban stan u Skyline kompleksu u Beogradu, na devetom spratu savremenog i reprezentativnog objekta. Zgrada poseduje reprezentativan ulaz sa recepcijom, 24/7 obezbeđenje, kao i kontrolisan pristup garažnim mestima, pružajući stanarima visok nivo sigurnosti i privatnosti. Kvalitet gradnje kao i završne obrade su na vrhunskom nivou, dok dodatni sadržaji poput spa centra, bazena i savremeno opremljene teretane čine svakodnevni život u ovom kompleksu izuzetno komfornim i luksuznim. Stan je funkcionalno organizovan i sastoji se od ulaznog dela, prostranog dnevnog boravka sa trpezarijom i kuhinjom koncipiranih po open space principu, tri spavaće sobe od kojih je jedna master soba sa kupatilom, još jednog kupatila, toaleta i terase. U cenu stana uključeni su svi ugradni elementi, kuhinja i plakari rađeni po meri, što dodatno doprinosi estetici i praktičnosti prostora. Uz stan se prodaje i garažno mesto površine 13 m² po ceni od 40.000 €, kao i ostava od 2,5 m² koja se nalazi u podzemnom nivou objekta. Ova nekretnina predstavlja idealan izbor za kupce koji traže kvalitetan, moderan i funkcionalan dom u uređenom i bezbednom okruženju, uz sve prednosti koje pruža savremeni stambeni kompleks na izuzetnoj lokaciji. Stan je uknjižen na 107m2, dok je merena površina sa terasom 111m2. Četvorosoban stan u Skyline kompleksu u Beogradu, na devetom spratu, sa tri spavaće sobe, terasom i garažom predstavlja odličan izbor za kvalitetan život. Posrednička naknada se obračunava u skladu sa Opštim uslovima poslovanja agencije „DIVIS NEKRETNINE“ d.o.o. | |
| ID nekretnine | 226347 |
| Izmena | 23.03.2026 |
| Ažuriran | 23.03.2026 |
| Link | https://www.e-Belgrade.net/nekretnina/savski-venac-684800eur-107m2-cetvorosoban-226347 |
Kontakt
Divis nekretnine
Beograd
Adresa: Bulevar despota Stefana 64a
Broj u registru: 5