Jednoiposoban stan na Panteleju

pregledajte 6 slika
Bild 2288684
Bild 2288685
Vrsta stan – prodaja
Lokacija Niš – Pantelej – -
Adresa
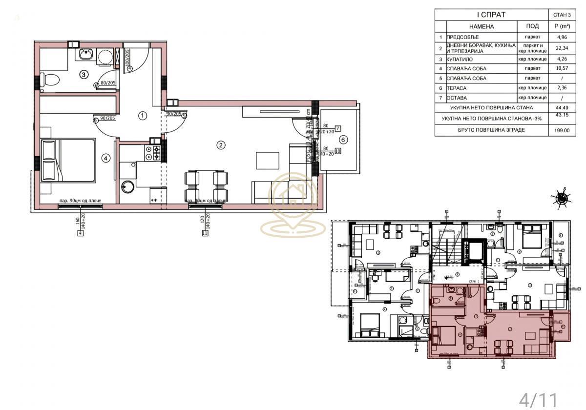
stan površina 44m²
Sobe 1,5 (Jednoiposoban)
Terase Terasa
Sprat 3 od 4 spratova, · sa Liftom
Grejanje podno
Stanje u izgradnji
Garaža / Parking 1 X Parking
Podrum Podrum
Dodatno
Cena 84.531€ [ 1921 €/m² ]
Na prodaju jednoiposoban stan u kvalitetnoj novogradnji na Panteleju. Dostupan na I, II, III i IV spratu stambene zgrade sa liftom. Kvadratura: 44,49m² Sastoji se od: -predsoblja -dnevne sobe sa trpezarijom i kuhinjom - spavace sobe -kupatila -terase U ponudi su stanovi u kvalitetnoj novogradnji na Panteleju, u Gornjomatejevačkoj ulici. Investitor sa dugogodišnjim iskustvom i proverenim kvalitetom gradnje, iza koga stoji realizacija više od 10 stambenih objekata na teritoriji grada. Objekat je spratnosti Po+P+IV i projektovan je u skladu sa savremenim standardima stanovanja. U ponudi su stanovi različitih struktura i kvadratura od 44m² do 66m² (jednoiposobni, dvoiposobni i troiposobni), sa funkcionalnim rasporedima i maksimalno iskorišćenim prostorom. Zgrada poseduje lift, a oprema i završni radovi obuhvataju: * podno grejanje sa kalorimetrima * PVC stolariju sa aluminijumskim roletnama * demit fasadu * keramiku prve klase * energetski pasoš U okviru parcele predviđena su parking mesta, uz mogućnost kupovine po ceni od 6.000€. Rok završetka radova planiran je za jun 2027. godine. Mogucnost kupovine putem stambenog kredita uz 20% učešća. Cena po m² u zavisnosti od dinamike plaćanja: Keš: 44-46m² 1900e, 56-66m² 1800e Kredit 2000e Odlična prilika kako za porodično stanovanje, tako i za investiciju Za vise informacija kontaktirajte nas Agencijska provizija u skladu sa opstim uslovima poslovanja Kompas neketnine- vas pouzdan partner u kupovini i prodaji nekretnina Klima, Interfon, Video interfon, Video nadzor, Može na kredit Nije poslednji sprat Nije prizemlje Ostava
ID nekretnine 228490
Izmena 15.04.2026
Ažuriran 15.04.2026
Link https://www.e-Belgrade.net/nekretnina/pantelej-stan-84531eur-44m2-jednoiposoban-228490
Kontakt
Kompas Nekretnine
Kompas Nekretnine
Beograd
Adresa: Kumodraška 144
Broj u registru: 1596
Pošalji upit