1.5 stan u NOVOGRADNJI, Donja Vrežina
pregledajte 1 slika
| Vrsta | stan – prodaja |
| Lokacija | Niš – Pantelej – - – Donja vrežina |
| Adresa | |
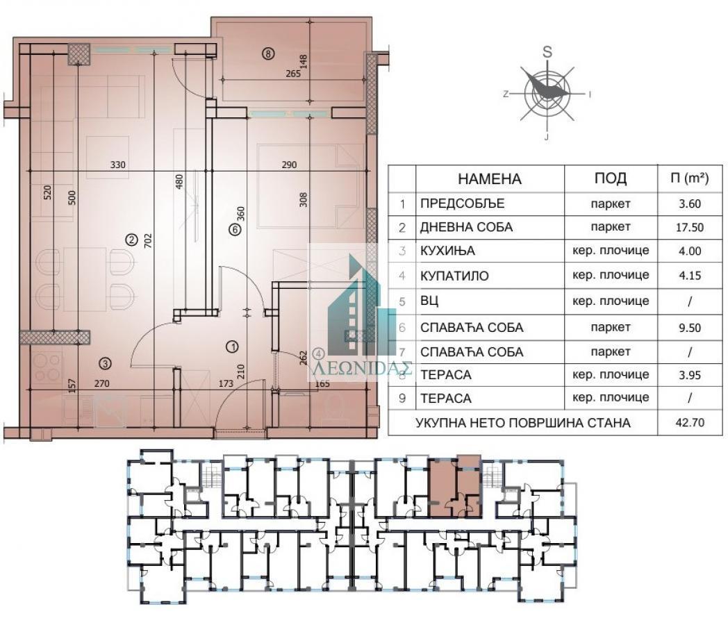
| stan površina | 42,7m² |
| Sobe | 1,5 (Jednoiposoban) |
| Terase | Terasa |
| Sprat | 1 od 4 spratova, · sa Liftom |
| Grejanje | etažno |
| Stanje | novogradnja |
| Dodatno | |
| Cena | 76.860€ [ 1800 €/m² ] |
| Niš, Donja Vrežina, Vrežinski Bulevar - Prodaje se 1.5 stan, 42.7m2, u novogradnji u neposrednoj blizini Vrežinskog Bulevara. Trenutno je ova kvadratura raspoloživa na više spratova u zgradi od ukupno 4. Zgrada poseduje lift. Stan ove kvadrature poseduje prostran dnevni boravak sa trpezarijom i kuhinjskim delom, odvojenu spavaću sobu, predsoblje, terasu i kupatilo. Grejanje je predviđeno na inverter klimu, a postoji i mogućnost izbora (kotao na struju), u skladu sa zahtevima budućih vlasnika. Kvalitet gradnje je izvanredan, više detalja putem kontakta u nastavku. Cena stana u trenutnoj fazi gradnje iznosi 76860eur. Mogućnost kupovine parking mesta. I za prve kupce, postoji mogućnost povraćaja PDV-a. Rok završetka je predviđen za Decembar 2027. godine. Kontakt za više informacija: 060/505-6429, 063/163-5233. BEZ PROVIZIJE ZA KUPCE. Agencija Leonidas nekretnine upisana je u Registar posrednika pod brojem 1599. Video nadzor, Klima, Nije prizemlje Nije poslednji sprat Može na kredit | |
| ID nekretnine | 228097 |
| Izmena | 11.04.2026 |
| Ažuriran | 15.04.2026 |
| Link | https://www.e-Belgrade.net/nekretnina/pantelej-stan-76860eur-42.7m2-jednoiposoban-228097 |
Kontakt
Leonidas nekretnine
Niš
Adresa: Bulevar dr Zorana Đinđića 7/1
Broj u registru: 1599