Na prodaju 2.5 stan u novogradnji, Pantelej

pregledajte 6 slika
Bild 2288673
Bild 2288674
Vrsta stan – prodaja
Lokacija Niš – Pantelej – -
Adresa
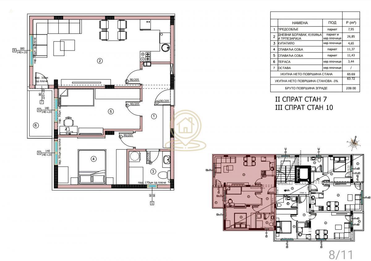
stan površina 65m²
Sobe 2,5 (Dvoiposoban)
Terase Terasa
Sprat 3 od 4 spratova, · sa Liftom
Grejanje podno
Stanje u izgradnji
Garaža / Parking 1 X Parking
Godina gradnje 2026
Podrum Podrum
Dodatno
Cena 118.242€ [ 1819 €/m² ]
Na prodaju dvoiposoban stan u kvalitetnoj novogradnji na Panteleju. Dostupan na II, III i IV spratu stambene zgrade sa liftom. Kvadratura: 65,69 m² Sastoji se od: -predsoblja -dnevne sobe sa trpezarijom i kuhinjom - 2 spavace sobe -kupatila -terase U ponudi su stanovi u kvalitetnoj novogradnji na Panteleju, u Gornjomatejevačkoj ulici. Investitor sa dugogodišnjim iskustvom i proverenim kvalitetom gradnje, iza koga stoji realizacija više od 10 stambenih objekata na teritoriji grada. Objekat je spratnosti Po+P+IV i projektovan je u skladu sa savremenim standardima stanovanja. U ponudi su stanovi različitih struktura i kvadratura od 44m² do 66m² (jednoiposobni, dvoiposobni i troiposobni), sa funkcionalnim rasporedima i maksimalno iskorišćenim prostorom. Zgrada poseduje lift, a oprema i završni radovi obuhvataju: * podno grejanje sa kalorimetrima * PVC stolariju sa aluminijumskim roletnama * demit fasadu * keramiku prve klase * energetski pasoš U okviru parcele predviđena su parking mesta, uz mogućnost kupovine po ceni od 6.000€. Rok završetka radova planiran je za jun 2027. godine. Mogucnost kupovine putem stambenog kredita uz 20% učešća. Cena po m² u zavisnosti od dinamike plaćanja: Keš: 44-46m² 1900e, 56-66m² 1800e Kredit 2000e Odlična prilika kako za porodično stanovanje, tako i za investiciju Za vise informacija kontaktirajte nas Agencijska provizija u skladu sa opstim uslovima poslovanja Kompas neketnine- vas pouzdan partner u kupovini i prodaji nekretnina Klima, Interfon, Video interfon, Video nadzor, Može na kredit Nije poslednji sprat Nije prizemlje Gradska kanalizacija Ostava
ID nekretnine 228488
Izmena 15.04.2026
Ažuriran 15.04.2026
Link https://www.e-Belgrade.net/nekretnina/pantelej-stan-118242eur-65m2-dvoiposoban-228488
Kontakt
Kompas Nekretnine
Kompas Nekretnine
Beograd
Adresa: Kumodraška 144
Broj u registru: 1596
Pošalji upit