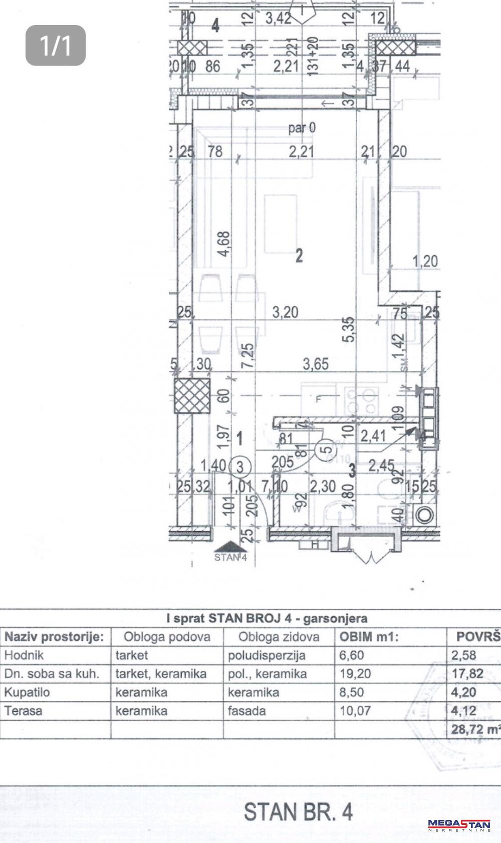
Garsonjera, prvi sprat

pregledajte 2 slika
Bild 2302038
Bild 2302039
Vrsta stan – prodaja
Lokacija JUŽNO-BANATSKI OKRUG – Pančevo – Margita
Adresa
stan površina 29m²
Sobe 0,5 (Garsonjera)
Terase Terasa
Sprat 1 od 4 spratova,
Grejanje etažno
Dodatno
Cena 58.000€ [ 2000 €/m² ]
Funkcionalna garsonjera, odlična spratnost. Stanovi ovih kvadratura se prvi prodaju, zato ne gubite vreme zakažite gledanje. Margita mirno naselje, zgrada nedaleko od sadržaja poput marketa, nedaleko od centra i blizu nove glavne autobuske stanice. Kvalitetna gradnja, izdvajamo etažno grejanje na gas, aluminijumske prozore, kvalitetna ulazna vrata sa sigurnosnim bravama... Zgrada je u izgradnji, planiranog roka useljenja septembar 2027. Predbeležena, tj uknjižena u katastru. Moguća kupovina garažnog mesta po ceni 12.000 eura sa PDV-om i parking mesta po ceni 6.000 eura sa PDV-om. Navedena cena je bez PDV-a. Kupac ima pravo na povraćaj PDV-a. Agencijska provizija za kupca 2%. Broj agencije u Registru posrednika 298. Mapa je informativnog karaktera, ne prikazuje tačnu lokaciju nekretnine.
ID nekretnine 229645
Izmena 30.04.2026
Ažuriran 30.04.2026
Link https://www.e-Belgrade.net/nekretnina/pancevo-stan-prodaja-58000eur-29m2-garsonjera-229645
Kontakt
Megastan nekretnine
Megastan nekretnine
Beograd
Adresa: Takovska 36
Broj u registru: 298
Pošalji upit