Odlična investicija

pregledajte 2 slika
Bild 2302034
Bild 2302035
Vrsta stan – prodaja
Lokacija JUŽNO-BANATSKI OKRUG – Pančevo – Margita
Adresa
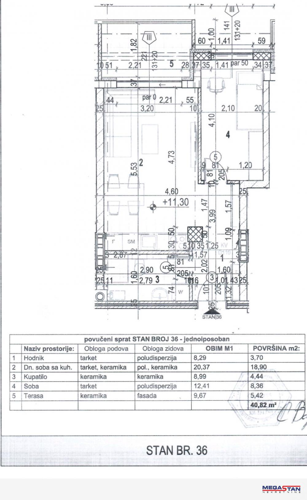
stan površina 41m²
Sobe 1,5 (Jednoiposoban)
Terase Terasa
Sprat 4 od 4 spratova,
Grejanje etažno
Dodatno
Cena 82.000€ [ 2000 €/m² ]
Zbog blizine centra, sve uređenije infrastrukture, bogat blizinom najbitnijih sadržaja, a još uvek sačuvanog mira, Margita postaje sve traženiji i poželjniji deo grada. Bez visokih zgrada i bučnih saobraćajnica, već je postala dom mnogih kako Pančevaca, tako i građana pridošlih iz Beograda i unutrašnjosti. Zgrada upisana u katastar predbeležbom, planiranog roka useljenja septembar 2027. godine. Stan je na poslednjem, četvrtom spratu i ima odvojenu spavaću sobu. Grejanje etažno na gas, stolarija je aluminijumska, sigurnosna brava, lift puzdanog proizvođača. Moguća kupovina garažnog mesta po ceni 12.000 eura sa PDV-om i parking mesta po ceni 6.000 eura sa PDV-om. Odlična investicija za svaku preporuku. Navedena cena je bez PDV-a. Kupac ima pravo na povraćaj PDV-a. Agencijska provizija za kupca 2%. Broj agencije u Registru posrednika 298. Mapa je informativnog karaktera, ne prikazuje tačnu lokaciju nekretnine.
ID nekretnine 229647
Izmena 30.04.2026
Ažuriran 30.04.2026
Link https://www.e-Belgrade.net/nekretnina/pancevo-stan-82000eur-41m2-jednoiposoban-229647
Kontakt
Megastan nekretnine
Megastan nekretnine
Beograd
Adresa: Takovska 36
Broj u registru: 298
Pošalji upit