Skrobara, za privrednu delatnost

pregledajte 2 slika
Bild 2302057
Bild 2302058
Vrsta plac – prodaja
Lokacija JUŽNO-BANATSKI OKRUG – Pančevo – Karaula
Adresa
plac površina 6500m²
Cena 449.500€ [ 69 €/m² ]
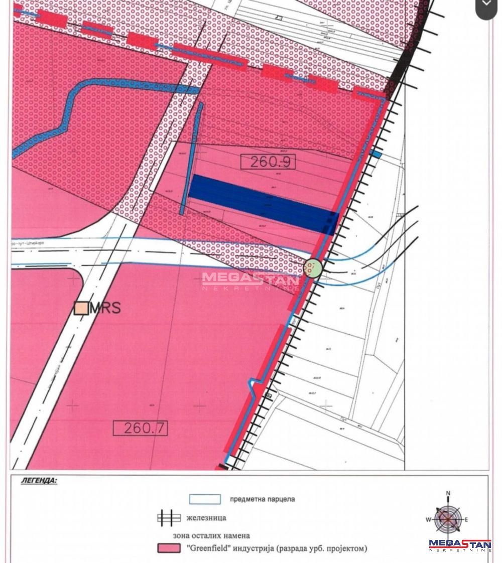
Ako ste u potrazi za građevinskim placem industrijske namene, skladište, proizvodnja, postavljanje hala, onda je ovo pravi plac za Vas. Nalazi se u okviru Severne (poslovne) zone, u blizini fabrike Brose i kružnog toka. U planu je, u neposrednoj blizini placa, prolaz brze saobraćajnice koja spaja auto-put Beograd-Zrenjanin i auto-put Pančevo-Vršac. Tako da će plac imati direktnu vezu sa više auto-puteva, Pupinovim mostom, budućim mostovima kod Vinče i Dobanovaca (budući sektori "C" i "D"). Takva pozicija je strateška saobraćajna prednost. Blizina pruge, luka "Dunav" 8km. Dostupnost resursa Severne zone - električna energija 6,2 MW. Gas 1000m3/h na pritisku od 3,5 bara, priključci za kanalizaciju. Generalna spratnost Pr+2 i indeks zauzetosti 50%. Plac je ravan, fronta oko 22m. Vlasništvo 1/1. Agencijska provizija za kupca 2%. Broj agencije u Registru posrednika 298. Mapa je informativnog karaktera, ne prikazuje tačnu lokaciju nekretnine.
ID nekretnine 229642
Izmena 30.04.2026
Ažuriran 30.04.2026
Link https://www.e-Belgrade.net/nekretnina/pancevo-plac-prodaja-449500eur-6500m2-229642
Kontakt
Megastan nekretnine
Megastan nekretnine
Beograd
Adresa: Takovska 36
Broj u registru: 298
Pošalji upit