Na prodaju LUX stan novogradnje na Novom Beogradu, 85.09m2
pregledajte 11 slika
| Vrsta | stan – prodaja |
| Lokacija | Beograd – Novi Beograd – - |
| Adresa | |
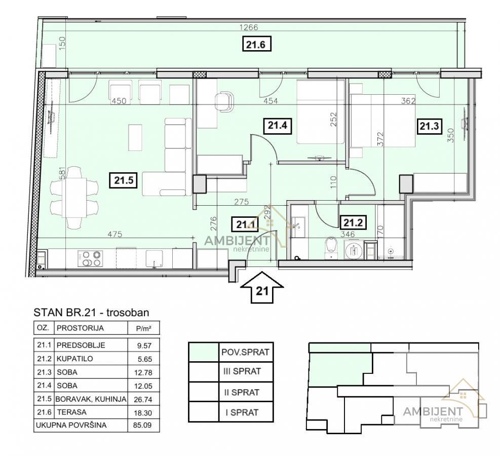
| stan površina | 85,09m² |
| Sobe | 3,0 (Trosoban) |
| Terase | Terasa |
| Sprat | 4 od 4 spratova, · sa Liftom |
| Grejanje | centralno |
| Stanje | novogradnja Lux |
| Dodatno | |
| Cena | 280.797€ [ 3300 €/m² ] |
| ID 1338 Kontakt: Za više informacija ili dogovor oko razgledanja, pozovite 0643255742. Bez agencijske provizije - direktna cena od investitora. Pravni nadzor - izrada kupoprodajnog ugovora obezbeđena. Trosoban stan površine 85.09 m2 na Novom Beogradu, u kvalitetnoj novogradnji koja ispunjava savremene standarde stanovanja. Odlikuje ga funkcionalan raspored i visok nivo završne obrade. Stan se sastoji od predsoblja, dnevnog boravka sa kuhinjom, dve spavaće sobe, kupatila i terase. Objekat je građen od termo bloka sa unapređenom izolacijom, dok su zidovi između stanova dodatno izolovani kombinacijom bloka, kamene vune i gipsa. Fasada je urađena sa 10 cm kamene vune, što obezbeđuje odličnu energetsku efikasnost. Podne obloge su od kvalitetnog Swiss Krono kompozitnog parketa, dok su u kupatilu i na terasi postavljene pločice renomiranih proizvođača, sa protivkliznom završnom obradom na terasi. Grejanje je daljinsko, putem gradske toplane, sa aluminijumskim radijatorima, sušačem u kupatilu i individualnim kalorimetrom za obračun po potrošnji. Stan je opremljen inverter klimom marke Midea u dnevnoj sobi. Sanitarije su vrhunskog kvaliteta, EU proizvodnje, brendova Grohe i Ideal Standard, sa modernim walk in tušem. Elektro galanterija je u beloj boji, uz dodatnu rasvetu u kupatilu, na terasi i senzorsku rasvetu u zajedničkim prostorima. Postoji mogućnost kupovine garažnog mesta na nivou minus dva po ceni od 20.000 evra plus PDV. Cena je bez PDV-a - a pravo na povraćaj PDV-a imaju kupci prvog stana. Broj u registru posrednika: 1667. Video nadzor, Interfon, Internet, Nije prizemlje Može na kredit Gradska kanalizacija | |
| ID nekretnine | 227247 |
| Izmena | 04.04.2026 |
| Ažuriran | 07.04.2026 |
| Link | https://www.e-Belgrade.net/nekretnina/novi-beograd-stan-280797eur-85.09m2-trosoban-227247 |
Kontakt
Ambijent Nekretnine
Inđija
Adresa: Kralja Petra I 9
Broj u registru: 1667