Na prodaju – Novogradnja u centru Niša, 1.5–4.0 stanovi

pregledajte 18 slika
Bild 2061655
Bild 2061656
Vrsta stan – prodaja
Lokacija Niš – Medijana – - – Trg Učitelja Tase
Adresa
stan površina 48m²
Sobe 1,5 (Jednoiposoban)
Terase Terasa
Sprat 7 od 8 spratova, · sa Liftom
Grejanje podno
Stanje u izgradnji
Garaža / Parking 1 X Garaža1 X Parking
Dodatno
Cena 136.300€ [ 2839 €/m² ]
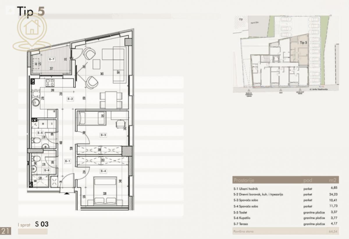
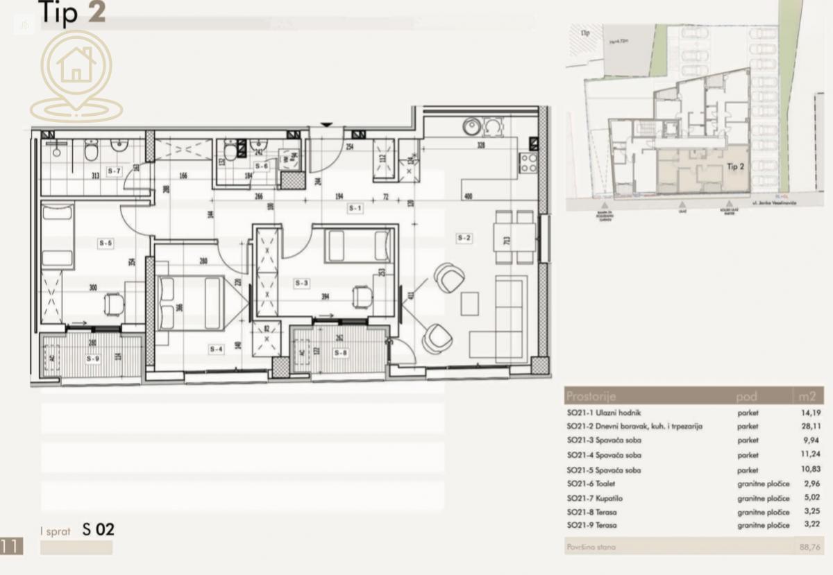
Na izuzetnoj lokaciji u centru Niša, u ponudi je moderan stambeni objekat koji pruža spoj mirnog okruženja i odlične povezanosti sa svim delovima grada. Osnovna škola „Učitelj Tasa” udaljena je svega 3 minuta hoda, a glavne gradske saobraćajnice, prodavnice, restorani i ustanove nalaze se u neposrednoj blizini. Osnovne karakteristike: Objekat sa 35 stanova – od funkcionalnih jednoiposobnih do prostranih četvoroiposobnih Velike terase i obilje prirodnog svetla Ravan krov sa prohodnom terasom i zelenim krovom za stanare Konstrukcija i materijali: Armiranobetonski skelet sa temeljnom pločom i centralnim AB jezgrom (lift i stepenište) Spoljni zidovi sa termoizolacijom (kamena vuna 10 cm) i „Demit“ fasadnim sistemom Višeslojni parket u sobama i hodnicima, granitna keramika u kupatilima i na terasama Plivajući podovi sa zvučnom izolacijom Grejanje i hlađenje: Podno grejanje na elektro-kotao Inverter klima uređaji Pametan sistem upravljanja putem mobilnog telefona Parking opcije: Podzemna garaža sa 18 mesta (pristup rampom na daljinsko upravljanje) 5 mesta u prizemlju objekta 13 mesta u dvorištu 2 mesta za osobe sa invaliditetom Dodatne informacije: Cena uključuje PDV Završetak radova: sredina 2027. godine Dostupne strukture: od 1.5 do 4.0 stanova Ova novogradnja predstavlja savršenu priliku za porodičan život ili investiciju zahvaljujući kvalitetnoj gradnji, modernoj tehnologiji i izuzetnoj lokaciji. Agencijska provizija u skladu sa opštim uslovima poslovanja. Kompas Nekretnine – vaš pouzdan partner u kupovini i prodaji nekretnina Postoje različite strukture stanova od 1.5 do 4.0 Agencijska provizija u skladu sa opštim uslovima poslovanja. Video nadzor, Video interfon, Interfon, Internet, Telefon, Kablovska, Klima, Nije prizemlje Nije poslednji sprat
ID nekretnine 208225
Izmena 09.04.2026
Ažuriran 15.04.2026
Link https://www.e-Belgrade.net/nekretnina/medijana-stan-136300eur-48m2-jednoiposoban-208225
Kontakt
Kompas Nekretnine
Kompas Nekretnine
Beograd
Adresa: Kumodraška 144
Broj u registru: 1596
Pošalji upit