Novogradnja na najtraženijoj lokaciji Leštane
pregledajte 6 slika
| Vrsta | stan – prodaja |
| Lokacija | Beograd – Grocka – - – Leštane |
| Adresa | Smederevski put |
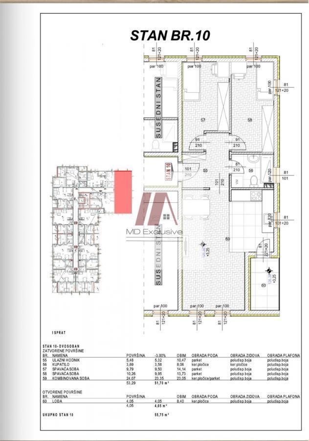
| stan površina | 56,48m² , uknjižena nekretnina , uknjižena nekretnina |
| Sobe | 2,0 (Dvosoban) |
| Terase | Terasa |
| Sprat | 1 od 3 spratova, · sa Liftom |
| Grejanje | norveški radijatori |
| Stanje | novogradnja |
| Godina gradnje | 2025 |
| Dodatno | |
| Cena | 110.136€ [ 1950 €/m² ] |
| Prodaje se stan u novogradnji u Leštanima, na atraktivnoj lokaciji koja pruža idealan balans između mirnog porodičnog života i brze povezanosti sa gradom. Stan se nalazi u modernoj zgradi vrhunskog kvaliteta gradnje, sa pažljivo biranim materijalima i savremenim arhitektonskim rešenjima. Odličan raspored i maksimalno iskorišćen prostor pružaju visok nivo komfora i funkcionalnosti, kako za svakodnevni život, tako i kao sigurnu investiciju za izdavanje. Lokacija je izuzetno pogodna – u blizini se nalaze svi neophodni sadržaji za život, dok je centar grada lako i brzo dostupan. Na prvom spratu se nalaze još dva dvosobna stana, dok se u istoj zgradi nalaze i dodatna dva stana u potkrovlju. Mogućnost kupovine parking mesta po ceni od 5.000€. Odlična prilika za kupce koji traže kvalitet, mir i dobru investiciju na jednoj od sve traženijih lokacija. Cene su izražene bez PDV-a. Agencijska provizija iznosi 2%. Za više informacija pozvati. Klima, | |
| ID nekretnine | 228312 |
| Izmena | 10.04.2026 |
| Ažuriran | 12.04.2026 |
| Link | https://www.e-Belgrade.net/nekretnina/grocka-stan-110136eur-56.48m2-dvosoban-228312 |
Kontakt
Agencija za promet i zakup nekretnina MD Exclusive
Beograd
Adresa: Cara Dusana 67 stan 9 Dorcol
Broj u registru: 1958