Komforan, 2.0, odmah useljiv ID#14087

pregledajte 16 slika
Bild 2282163
Bild 2282164
Vrsta stan , Visoko prizemlje – prodaja
Lokacija Beograd – Čukarica – Banovo brdo
Adresa Nikolaja Gogolja
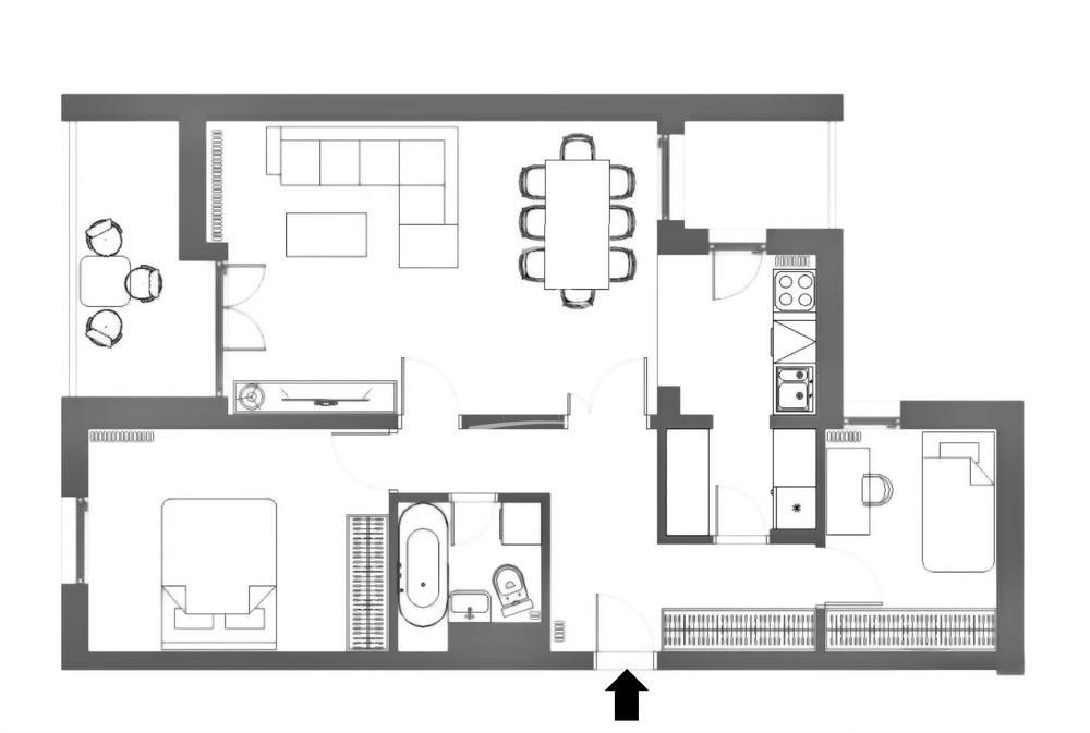
stan površina 72m²
Sobe 2,5 (Dvoiposoban)
Kupatila 1 kupatila
Terase Terasa
Sprat Visoko prizemlje od 7 spratova
Grejanje centralno
Garaža / Parking 1 X Parking
Podrum Podrum
Dodatno
Cena 210.000€ [ 2916 €/m² ]
Na prodaju dvoiposoban stan, mereno 75m² (uknjižen na 72 m²), visoko prizemlje od 7. spratova, u mirnoj ulici Nikolaja Gogolja u samom srcu Banovog brda. Stan je dvostrano orijentisan, izuzetno funkcionalnog rasporeda, sa terasom, lođom i pripadajućim podrumom. Održavan, sa klasičnim hrastovim parketom, prijatan i topao za život. Centralno grejanje, lift, video-nadzor, klima, kablovska TV, internet, interfon. U okviru zgrade nalazi se dečije igralište koje se vidi sa terase – idealno za porodičan život. Lokacija je pun pogodak: blizina tramvajske okretnice, nadomak Požeške ulice, u neposrednoj blizini vrtića, osnovne škole, gimnazije i doma zdravlja. Odlična saobraćajna povezanost sa svim delovima grada. Uknjižen je. Mogućnost zakupa garažnog/parking mesta u susednoj garaži uz mesečnu doplatu od 80 €. Agencijska provizija 2% Agent: Pavle Gulan, br. licence:6667 "Art nekretnine" d.o.o. Beograd Reg. br.339 011/26-20-734 .
ID nekretnine 223326
Izmena 05.04.2026
Ažuriran 07.04.2026
Link https://www.e-Belgrade.net/nekretnina/cukarica-stan-210000eur-72m2-dvoiposoban-223326
Kontakt
Art nekretnine
Art nekretnine
Beograd
Adresa: Dositejeva 9
Broj u registru: 339
Pošalji upit