Čukarica, Bele vode - Primućura Žarka, 177m2

pregledajte 16 slika
Bild 1932498
Bild 1932499
Vrsta stan – prodaja
Lokacija Beograd – Čukarica – Bele vode – Bele Vode
Adresa Primućura Žarka
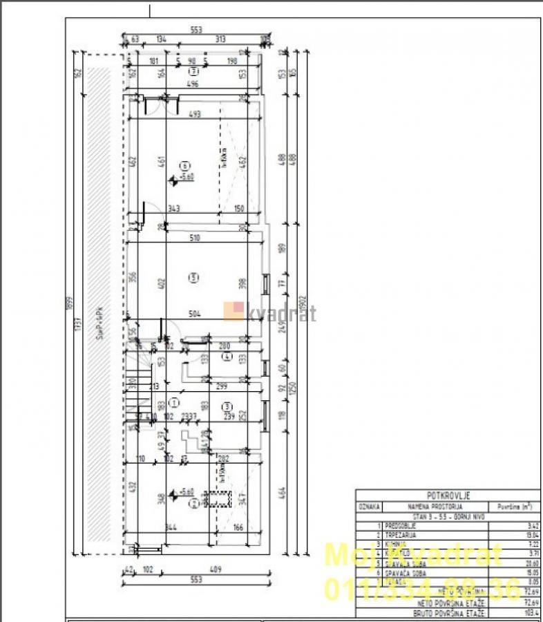
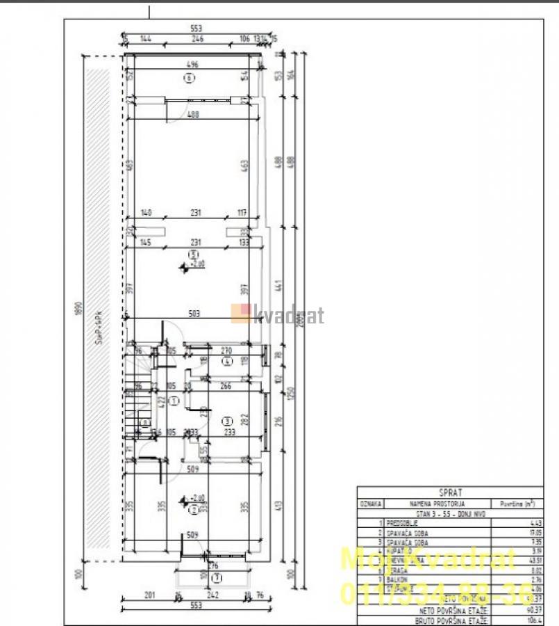
stan površina 177m² , uknjižena nekretnina , uknjižena nekretnina
Sobe 5,0 (Petosoban)
Terase Terasa
Sprat 1 od 2 spratova,
Grejanje gas
Garaža / Parking 1 X Parking
Godina gradnje 1970
Podrum Podrum
Dodatno
Cena 185.000€ [ 1045 €/m² ]
Čukarica, Bele vode - Primućura Žarka 5.0, 177m2 (tri terase 14m2), I+PTK, EG/gas, telefon, interfon, podrum, parking U ponudi dupleks u mirnoj ulici, u naselju Bele vode. Stan se nalazi u porodičnoj zgradi koja je podeljena po vertikali i horizontali na četiri stana. Prostorije: četiri spavaće sobe, prostrani dnevni boravak, kuhinja, trpezarija, dva kupatila, predsoblje i tri terase. Grejanje u stanu, kao i topla voda su povezani na gas. U neposrednoj blizini su gradski prevoz, škola, pijaca, dom zdravlja, market, prodavnice, a sama zgrada je okružena zelenilom. Stan je odličan kako za život, tako i kao poslovni prostor za mirne delatnosti. U cenu stana ulazi i parking mesto ispred zgrade. Uknjižen na 163m2 korisne površine. Agencijska provizija 2% Agent: Đorđe Ćirković Interfon, Telefon, Nije prizemlje Stara gradnja. Gradska kanalizacija
ID nekretnine 197708
Izmena 06.05.2026
Ažuriran 23.05.2026
Link https://www.e-Belgrade.net/nekretnina/cukarica-stan-185000eur-177m2-petosoban-197708
Kontakt
MOJ KVADRAT D.O.O.
MOJ KVADRAT D.O.O.
Beograd
Adresa: Beogradska 71/II
Broj u registru: 167
Pošalji upit